EasyManua.ls Logo

HandTop HT2500UV - Working environment

HandTop HT2500UV
71 pages
Print Icon
To Next Page IconTo Next Page
To Next Page IconTo Next Page
To Previous Page IconTo Previous Page
To Previous Page IconTo Previous Page
Loading...
22
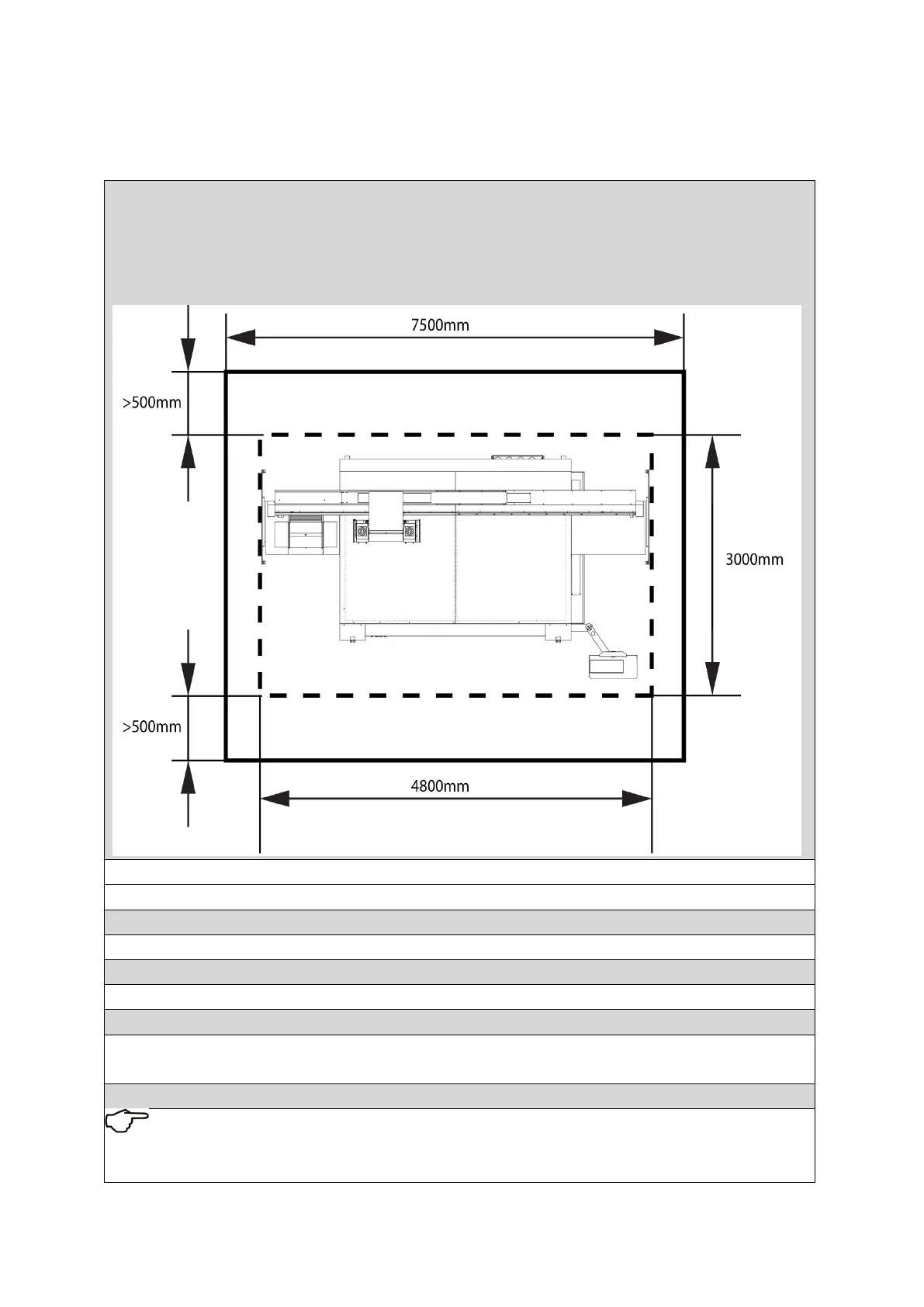
2. Working environment
The limit distance of the moving part the machinery can reach is illustrated with
dot-line box below.
Set barriers for the area illustrated with black-line box below to prevent moving part
doing damage to operators.
Note that at least 500mm free area should be set for both front and rear side.
Individual, clean, shadowy and dust-free workplace with associated ventilation
Altitude: Below 1000 meter
Constant humidity: 30%~70%RH(non-condensing)
Ambient Temperature: 18 ~ 30 (64 ~ 86)
Clean and dust-free
Sheltered from sunlight
In a good ventilating condition
Certified power outlet of which maximum consumption of 8kW and amperage of 20A
is required
Rated voltage of 400VAC and the grounded voltage should below the value of 3V
See

Table of Contents