EasyManua.ls Logo

heat-timer ETS-LT - 03 SPECIFICATIONS

heat-timer ETS-LT
48 pages
Print Icon
To Next Page IconTo Next Page
To Next Page IconTo Next Page
To Previous Page IconTo Previous Page
To Previous Page IconTo Previous Page
Loading...
059327–00 REV. C
HEAT-TIMER CORP.
|
7
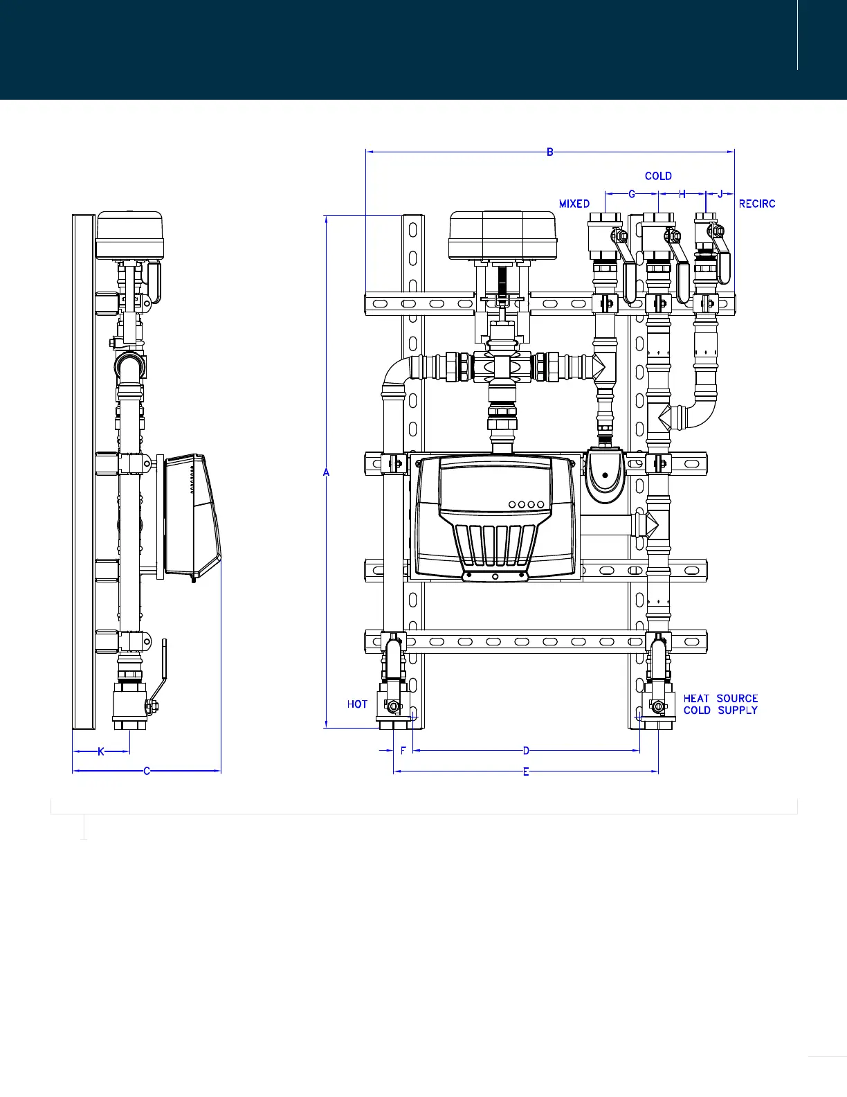
03 SPECIFICATIONS
FIGURE 3
ETS-LT DIMENSIONS

Table of Contents

Related product manuals