EasyManua.ls Logo

Hioki RM3544 - Page 195

Hioki RM3544
226 pages
Print Icon
To Next Page IconTo Next Page
To Next Page IconTo Next Page
To Previous Page IconTo Previous Page
To Previous Page IconTo Previous Page
Loading...
Appendix 7 Unstable Measured Values
A15
Appendix
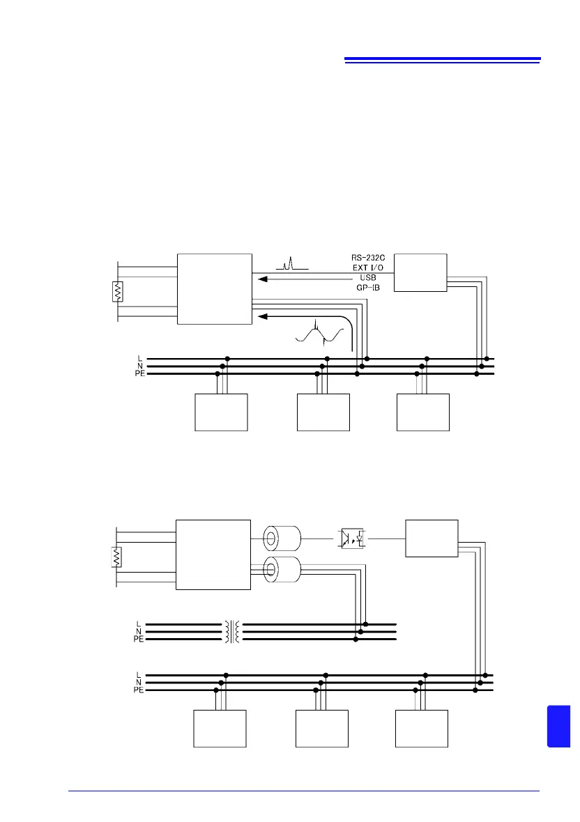
(2) Effects of conductive noise
Conductive noise is distinct from induced noise, which is superimposed on measurement
targets and measurement leads. Conductive noise is noise that is superimposed on power
lines and control lines such as USB.
A variety of devices, including motors, welders, and inverters, can be connected to power
supply lines. A large spike current flows to the power supply while this equipment is operat-
ing and each time it starts and stops. Due to this spike current and the power supply line’s
wiring impedance, a large spike voltage occurs in the power supply line and the power sup-
ply ground line, and these spikes may affect measuring instruments.
Similarly, noise may be introduced from the controller’s control lines. Noise from the con-
troller’s power supply and noise from sources such as DC-DC converters in the controller
may reach measuring instruments via USB and EXT I/O wires (see Fig. 5).
An effective approach is to monitor conductive noise with an instrument such as the Hioki
3145 Noise HiLogger and implement countermeasures as appropriate. Once the path along
which the noise is traveling has been identified, the countermeasures show in Fig. 6 are
effective.
Figure 5. Susceptibility to Conductive Noise
Instrument
Controller
(PC, PLC)
Power supply lines
Motor Welder Inverter
Figure 6. Conductive Noise Countermeasures
Instrument
Controller
(PC, PLC)
Power supply lines
Motor Welder Inverter
Separate
power supply lines
Power supply lines
on a separate circuit
Isolation
Common-mode filter
on noise path
Isolation

Table of Contents

Related product manuals