EasyManua.ls Logo

Hunter HD Elite - Page 5

Hunter HD Elite
52 pages
Print Icon
To Next Page IconTo Next Page
To Next Page IconTo Next Page
To Previous Page IconTo Previous Page
To Previous Page IconTo Previous Page
Loading...
FRONT VIEW
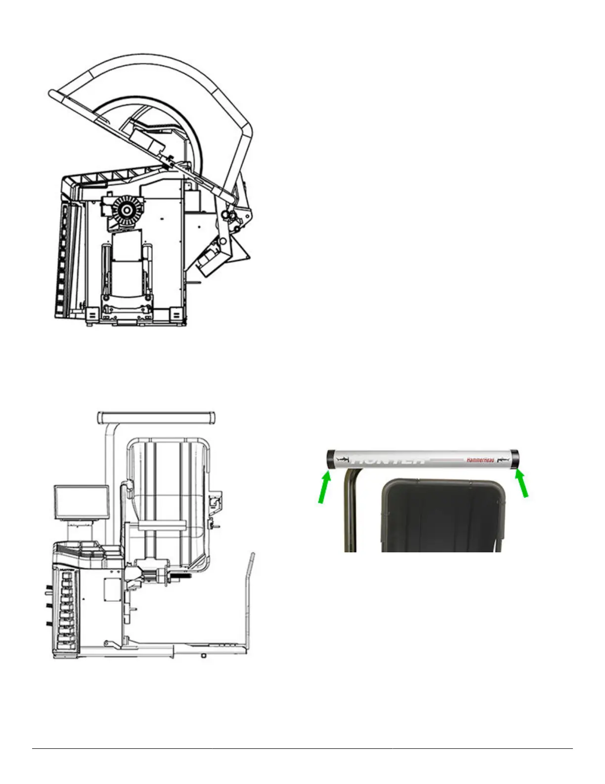
FDA standards for Class 2M laser compliance are shown on Decal HD Elite 28-HD, Elite HD, and Elite 55-2 (for TDC Units ).
The Class 2M laser apertures are located at either end of
the TDC header.
LEFT SIDE VIEW
Decal HD Elite 28-39HD Elite-2-00 cautions that the unit may automatically start upon closing of the hood when Hood
Autostart is enabled.
HD Elite Wheel Balancer
Page 5 of 51

Table of Contents

Other manuals for Hunter HD Elite

Related product manuals