EasyManua.ls Logo

Hydrafeed MSV 65 - Page 184

Default Icon
214 pages
Print Icon
To Next Page IconTo Next Page
To Next Page IconTo Next Page
To Previous Page IconTo Previous Page
To Previous Page IconTo Previous Page
Loading...
181
1
3
2
4
5
678
A
B
C
D
E
F
G
H
Model
Weight
Quantity
Unit:mm
Name
Date
Revision
Part No.
Draw
Material
Scale
Page
1
1 / 1
>400....±0.8
120-400....±0.5
30-120....±0.3
6-30....±0.2
3
-
6
.
.
.
.
±
0
.
1
<
3
.
.
.
.
±
0
.
1
G
e
n
e
r
a
l
T
o
l
e
r
a
n
c
e
A3
Dean
S24201-001X
S65
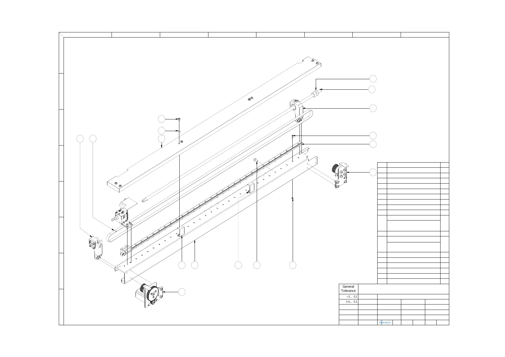
Transmission unit - 1500
1:7
2017/12/20
A
Q'ty
Part Number
Item
1
S04801-000X
1
1
S04802-000X
2
1
S04803-000X
3
1
S11123-001X
4
1
S14205-001X
5
2
S14206-000X
6
1S14701-001X
7
1
T04201-000X
8
1T04301-000X9
1T07100-180110
1
T14501-001X
11
1
T17100-1840
12
6
Hex socket cap screws-SW Set[M10x1.5x25L]
13
4
Hex socket cap screws-SW Set[M6x1.0x12L]
14
8
Hex socket cap screwsSSet[M6x1.0x12L]
15
31
Hex socket cap screws[M5x0.8x20L]
16
31
NutSWSet[M5x0.8]
17
8
Washer[6x19x1.5]
18
15
18
4
11
10
2
12
16
7
9
14
6
8
3
5
13
17
T07100-1901
(dia:19mm Black pushrod)
T17100-1940 (hole dia : 19mm
bush for dia:19mm Black pushrod)

Table of Contents

Related product manuals