EasyManua.ls Logo

Intel D850MVSE - Mechanical Considerations; D850 MD Form Factor; D850 MD Board Dimensions

Intel D850MVSE
126 pages
Print Icon
To Next Page IconTo Next Page
To Next Page IconTo Next Page
To Previous Page IconTo Previous Page
To Previous Page IconTo Previous Page
Loading...
Intel Desktop Board D850MD/D850MV Technical Product Specification
76
2.10 Mechanical Considerations
2.10.1 D850MD Form Factor
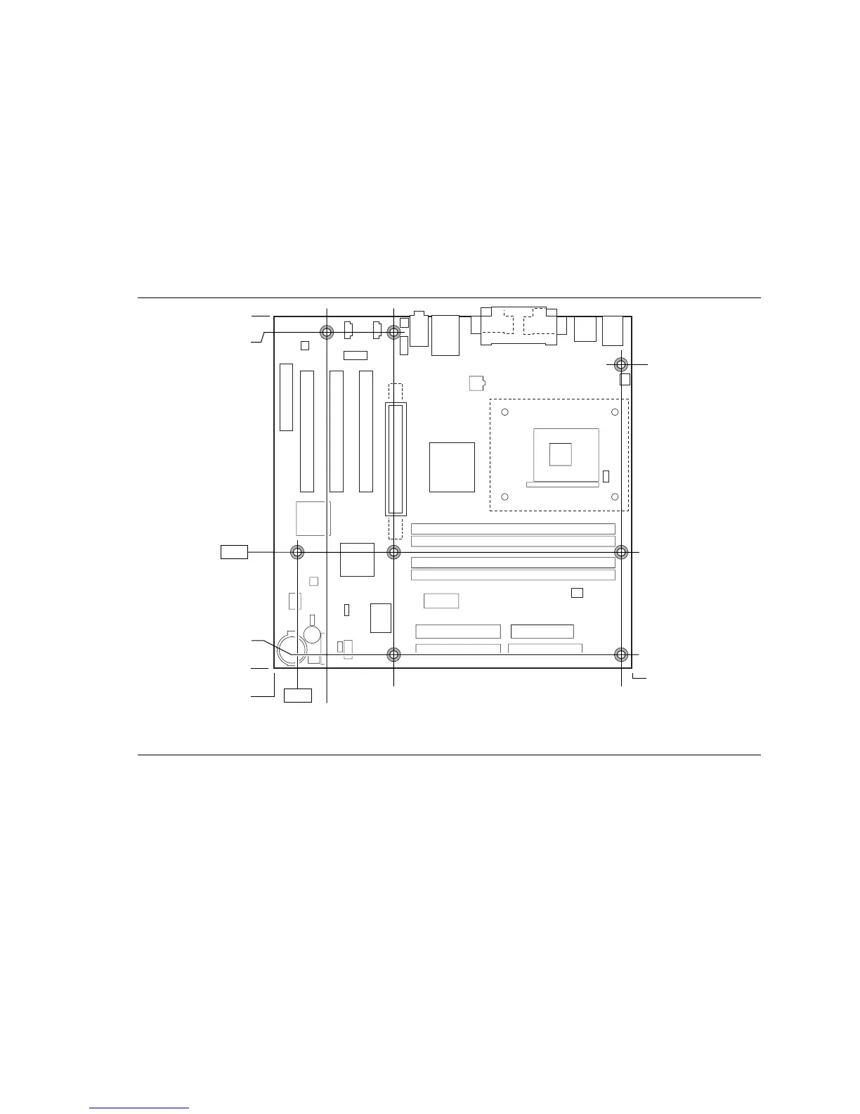
The D850MD board is designed to fit into a microATX form factor chassis. Figure 19 illustrates
the mechanical form factor for the D850MD board. Dimensions are given in inches [millimeters].
The outer dimensions are 9.60 inches by 9.60 inches [243.84 millimeters by 243.84 millimeters].
Location of the I/O connectors and mounting holes are in compliance with the ATX specification
(see Section 1.5).
OM12330
6.10[154.94]
3.10[78.74]
0.55[13.97]
0.80
[20.32]
9.05[229.87]
0.00
6.50[165.10]
8.80
[223.52]
5.20[132.08]
2.85[72.39]
2.60
[66.04]
0.00
Figure 19. D850MD Board Dimensions
NOTE
There may be mechanical interference with installed RDRAM modules in some combinations of
ATX chassis and peripherals, such as CD-ROM drives.

Table of Contents

Related product manuals