EasyManua.ls Logo

joule Modul-AIR All-E - Page 28

joule Modul-AIR All-E
116 pages
Print Icon
To Next Page IconTo Next Page
To Next Page IconTo Next Page
To Previous Page IconTo Previous Page
To Previous Page IconTo Previous Page
Loading...
28 www.jouleuk.co.uk | www.joule.ie
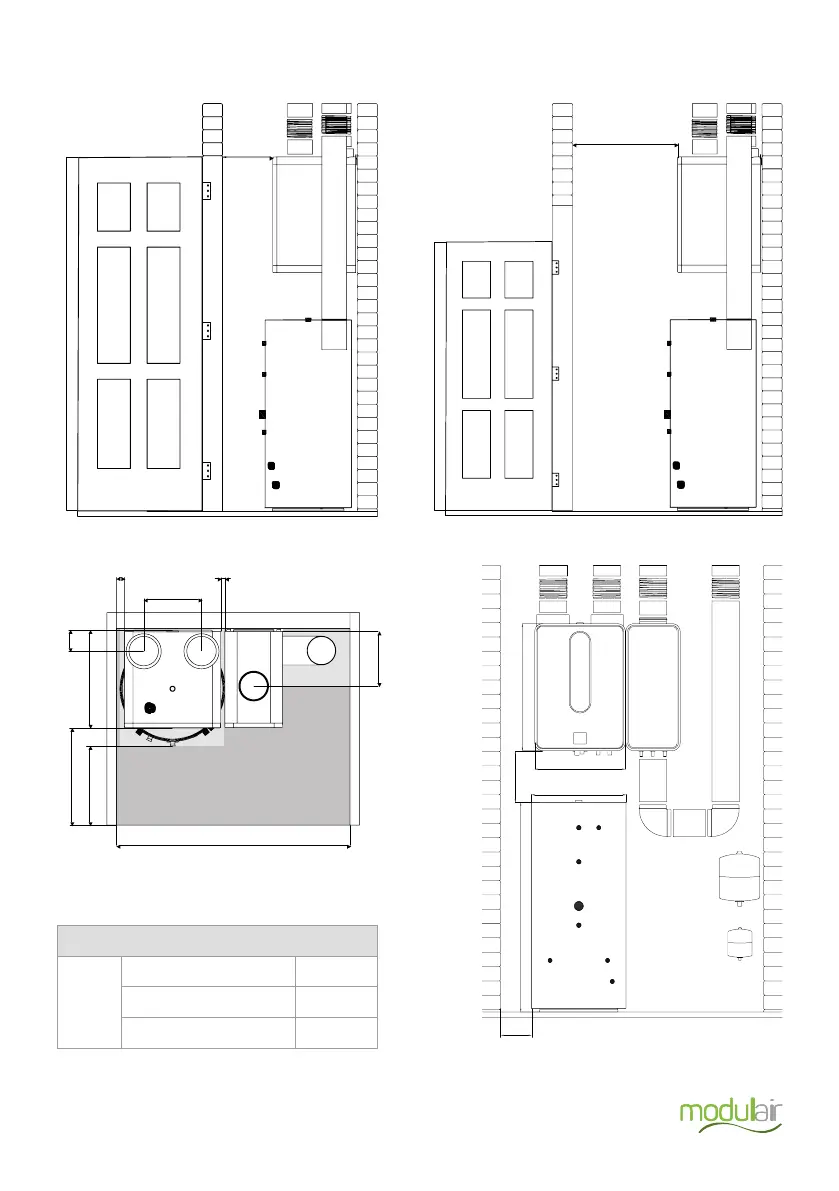
Modul-AIR, Green Comfort Module and Hot Water Tank
x mm
700mm
500mm
545mm
Min. = 100mm
Min =100mm
500mm
Door Height = 2100 mm
Tank Heights
x
TUMA-00150-LFC 1102mm
TUMA-00180-LFC 1293mm
TUMA-00210-LFC 1478mm
Void Width = 1200mm
500mm
400mm
285mm
510mm
111mm
10mm min. 10mm min.
300mm
200mm
Door Height (min) = 2350m m

Related product manuals