EasyManua.ls Logo

JRC JFE-680 - Installation Procedures; General Installation Cautions

JRC JFE-680
86 pages
Print Icon
To Next Page IconTo Next Page
To Next Page IconTo Next Page
To Previous Page IconTo Previous Page
To Previous Page IconTo Previous Page
Loading...
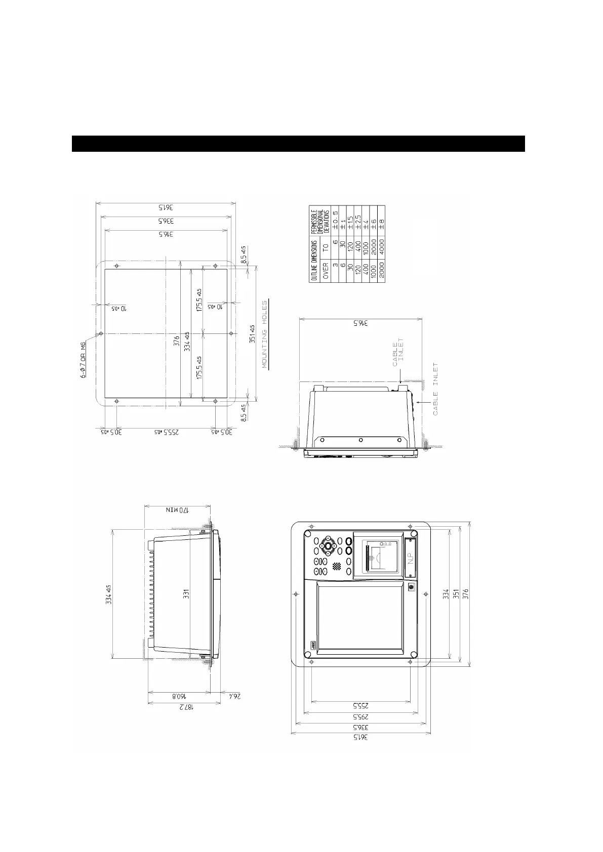
5.1 Installing the Recorder Unit
Flush-Mount Equipment
Figure 3-1
5. Installation 42
Unit : mm

Table of Contents

Other manuals for JRC JFE-680

Related product manuals