EasyManua.ls Logo

Komatsu 830E - Page 595

Komatsu 830E
783 pages
Print Icon
To Next Page IconTo Next Page
To Next Page IconTo Next Page
To Previous Page IconTo Previous Page
To Previous Page IconTo Previous Page
Loading...
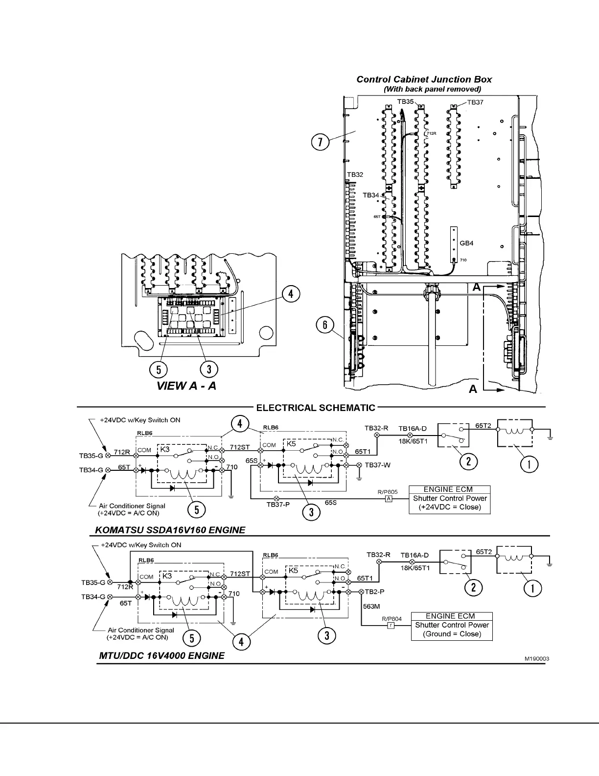
M19002 Radiator Shutters M19-3
FIGURE 19-3. ELECTRICAL HOOKUP AND SCHEMATIC
1. Shutter Solenoid Valve
2. Shutter Enable/Disable Switch
3. Relay K5
4. Relay Board #6
5. Relay K3
6. Electrical Cabinet
7. Junction Box (Rear of Cabinet)

Table of Contents

Other manuals for Komatsu 830E

Related product manuals