EasyManua.ls Logo

Leisure Unity 2020 - Page 72

Leisure Unity 2020
145 pages
Print Icon
To Next Page IconTo Next Page
To Next Page IconTo Next Page
To Previous Page IconTo Previous Page
To Previous Page IconTo Previous Page
Loading...
UNITY MOTORHOME APPLIANCE AND EQUIPMENT OPERATION
71
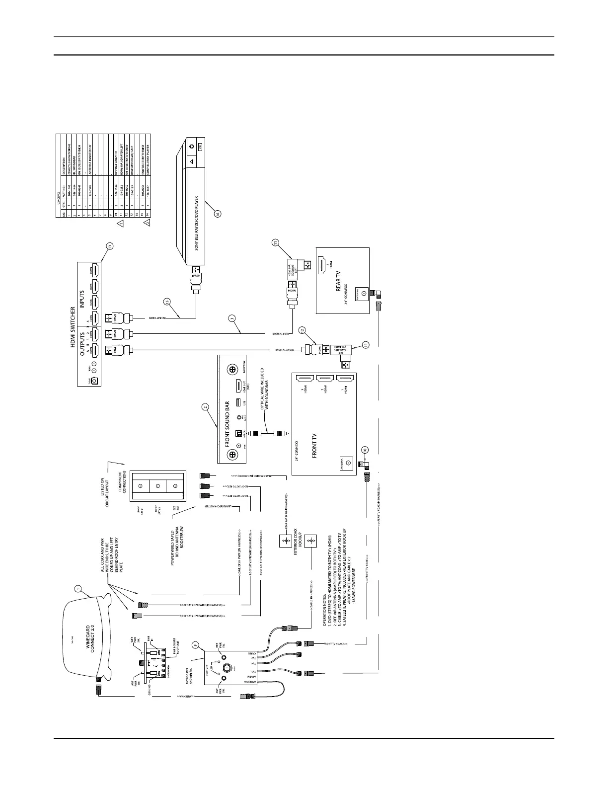
U24CB/FX ENTERTAINMENT SYSTEM
SCHEMATIC

Table of Contents

Related product manuals