EasyManua.ls Logo

Leisure Unity 2020 - Page 73

Leisure Unity 2020
145 pages
Print Icon
To Next Page IconTo Next Page
To Next Page IconTo Next Page
To Previous Page IconTo Previous Page
To Previous Page IconTo Previous Page
Loading...
APPLIANCE AND EQUIPMENT OPERATION UNITY MOTORHOME
72
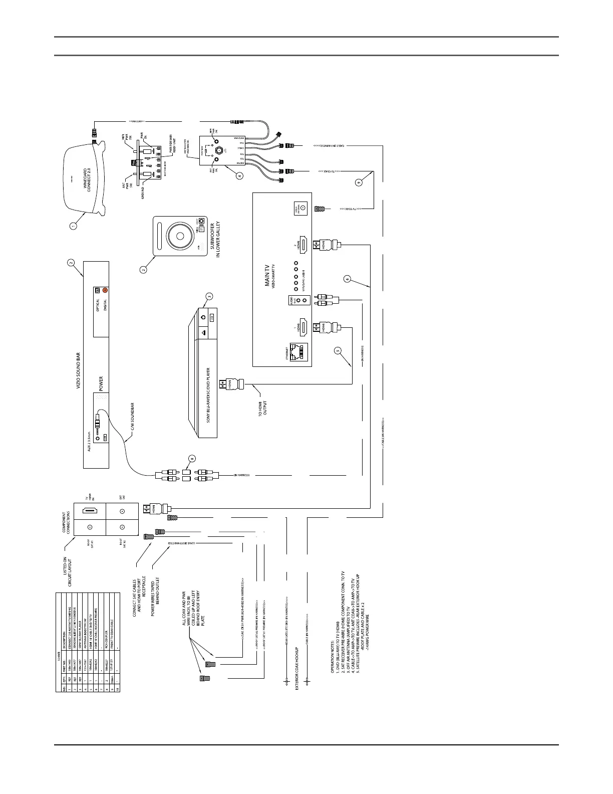
U24MB ENTERTAINMENT SYSTEM SCHEMATIC

Table of Contents

Related product manuals