EasyManua.ls Logo

Lenovo ThinkSystem SR665 - Page 124

Lenovo ThinkSystem SR665
466 pages
To Next Page IconTo Next Page
To Next Page IconTo Next Page
To Previous Page IconTo Previous Page
To Previous Page IconTo Previous Page
Loading...
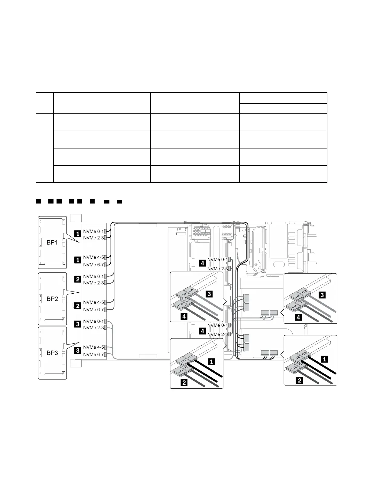
The following table shows the cable connections for all configurations:
Configuration 2: (front drive bays and mid drive bays)
Front: three 8 x 2.5-inch SAS/SATA backplanes (BP 1, BP 2, and BP 3)
Mid: two 4 x 2.5'' NVMe backplanes (BP 5 and BP 6)
Co-
nfig.
Front BP Mid BP
Storage controller
PCIe switch
2
BP 1: NVMe 0–1, NVMe 2–3
NVMe 4–5, NVMe 6–7
Slot 1
C 0, C 1, C 2, C 3
BP 2: NVMe 0–1, NVMe 2–3
NVMe 4–5, NVMe 6–7
Slot 2
C 0, C 1, C 2, C 3
BP 3: NVMe 0–1, NVMe 2–3
NVMe 4–5, NVMe 6–7
Slot 4
C 0, C 1, C 2, C 3
BP 5: NVMe 0–1, NVMe 2–3
BP 6: NVMe 0–1, NVMe 2–3
Slot 5
C 0, C 1, C 2, C 3
The following illustration shows the cable routing for the configuration 2. Connections between connectors:
1 1 , 2 2 , 3 3 , ... n n
Figure 41. Cable routing for configuration 2
114 ThinkSystem SR665 Maintenance Manual

Table of Contents

Other manuals for Lenovo ThinkSystem SR665

Related product manuals