EasyManua.ls Logo

Lenze E82EV752K4C - Fig. 6.6-1 Wiring According to EMC Requirements 15

Lenze E82EV752K4C
588 pages
Print Icon
To Next Page IconTo Next Page
To Next Page IconTo Next Page
To Previous Page IconTo Previous Page
To Previous Page IconTo Previous Page
Loading...
Basic units in the power range 15 ... 30 kW
Wiring according to EMC (installation of a CE-typical drive system)
6
Basic unit wiring
6.6
6.6.1
L
6.6-2
EDS82EV903-1.0-11/2002
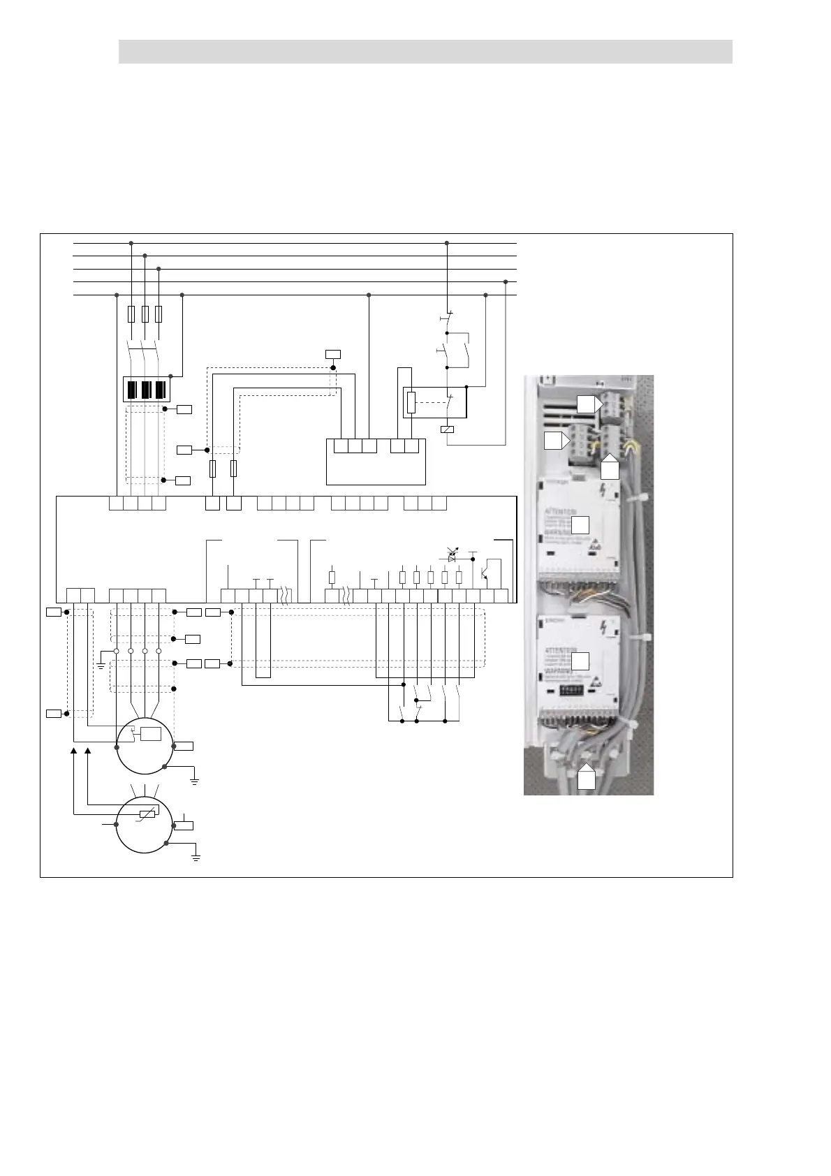
6.6.1 Wiring according to EMC (installation of a CE-typical drive system)
8200 vector
(15kW 90kW)
K1
L1
L2
L3
N
PE
F1 … F3
+UG -UG
FIF I
39 7
+20V
2820X3
GND2 GND1
62 9 7 20 28
E1 E2
E3
E4
39
A1
59
E82ZAFS
(PT E82ZAFS100)
E82ZAFx
FIF II
+20V
+5V
X3
GND1
GND2
PE
PE
M
3~
M
3~
PTC
PE
PES
Z1
PE
L1 L2
L3
PE
UV
W
T1
T2

PES
PES
PES
PES
PES
PES
PES
PES
PES
PES
-UG +UG
PE
RB1 RB2
9352
S2
S1
K1
K1
Z3
Z2
PES
PES
K21
K22 K24
nc
34
33 K32
K31
K11
K12 K14
K2 K
SR
K1
RFR
F4 F5
RB
RB
D
A
B
C
E
F
8200vec264
Fig. 6.6-1 Wiring according to EMC requirements 15 ... 90 kW
Show/Hide Bookmarks

Table of Contents

Related product manuals