EasyManua.ls Logo

LG MULTI V ARNU12GTRA4 - Page 16

LG MULTI V ARNU12GTRA4
520 pages
Print Icon
To Next Page IconTo Next Page
To Next Page IconTo Next Page
To Previous Page IconTo Previous Page
To Previous Page IconTo Previous Page
Loading...
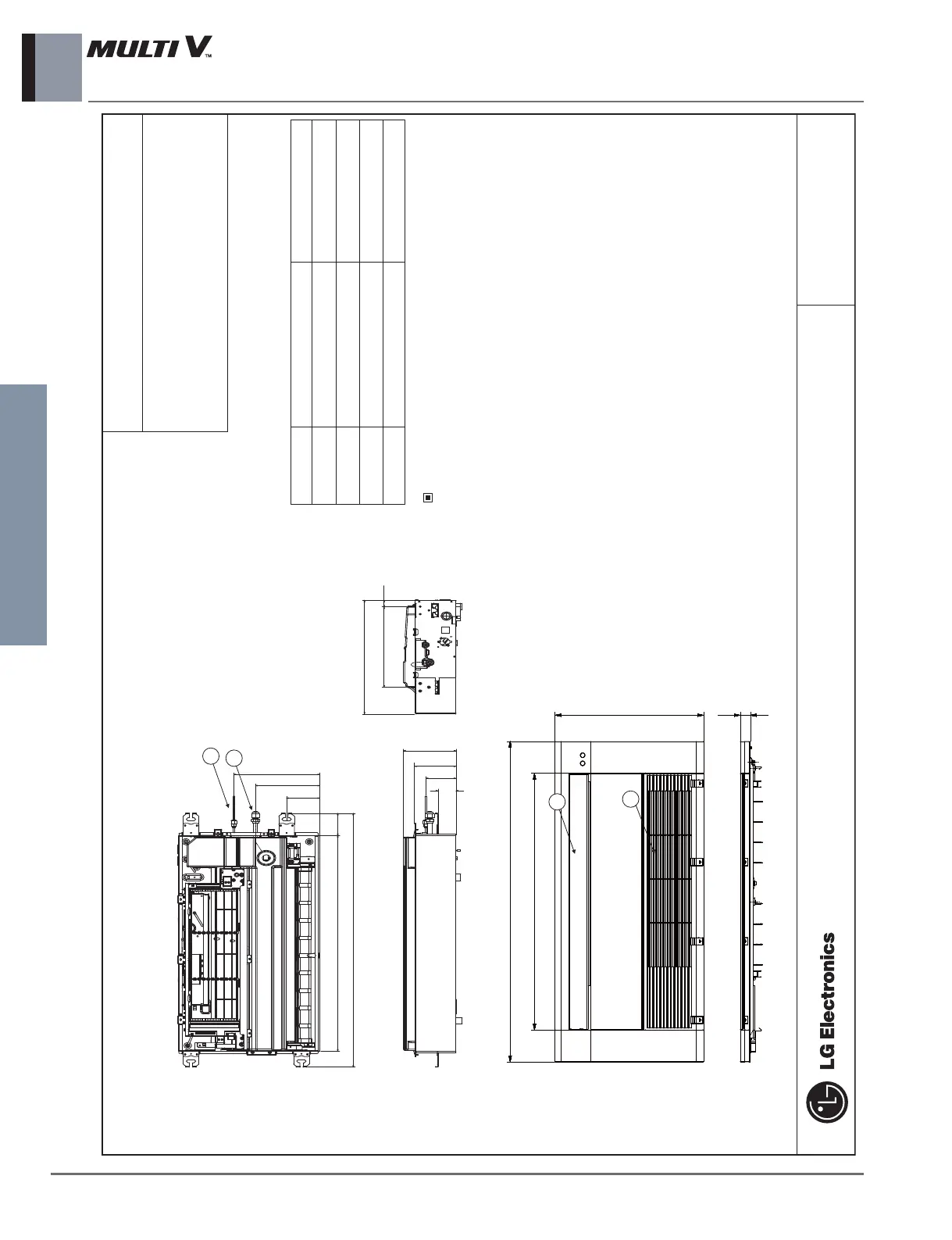
3. Dimensions
Indoor unit
4 _ Ceiling Cassette 1-Way
Indoor Units
CHASSIS CODE: TU
Ceiling Cassette 1-way
ARNU07GTU*4
ARNU09GTU*4
ARNU12GTU*4
Name
1 Liquid pipe connection
Unit size(7k, 9k, 12k):ø6.35
2 Gas pipe connection
Unit size(7k, 9k, 12k):ø12.7
3 Air suction grill
4 Air discharge grill
Number Descripition
Note
1. Unit should be installed in compliance with the installation manual
in the product box.
2. Unit shall be grounded in accordance with the local regulations or
applicable national codes.
(unit : mm)
1,100
50034
881(Air outlet Hole)
168.3
106.8
206.6
275.8
96.5
132
57.4
450
27
320.5
1012
88
860
(Panel Name: PT-UUC)
1
2
4
3

Table of Contents

Related product manuals