EasyManua.ls Logo

LG MULTI V ARNU12GTRA4 - Piping Diagrams

LG MULTI V ARNU12GTRA4
520 pages
Print Icon
To Next Page IconTo Next Page
To Next Page IconTo Next Page
To Previous Page IconTo Previous Page
To Previous Page IconTo Previous Page
Loading...
4. Piping Diagrams
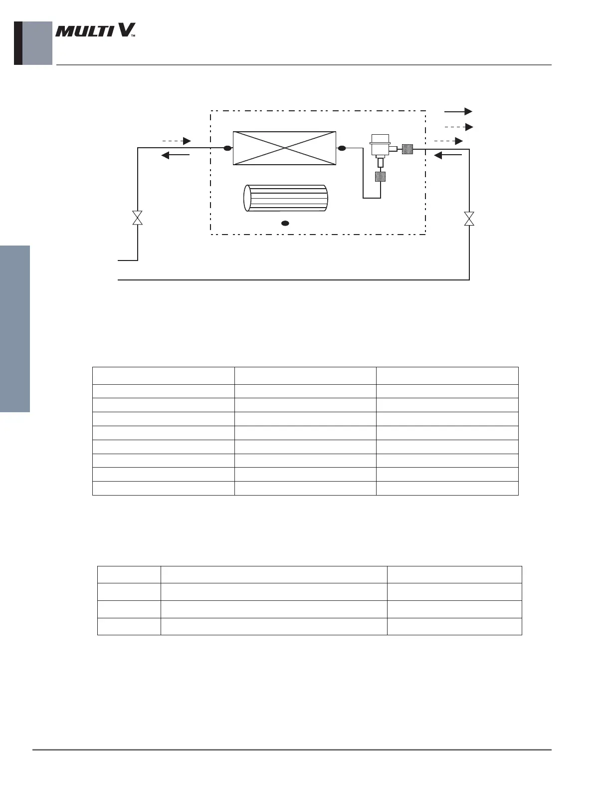
Indoor unit
6 _ Ceiling Concealed Duct(Low Static)
Indoor Units
Heat Exchanger
Sirocco Fan
Th3
Th1
Th2
lndoor unit
EEV
:Heating
:Cooling
Filter
Filter
Refrigerant pipe connection port diameter
[Unit: mm(inch)]
MODEL GAS LIQUID
ARNU05GL1G4 Ø12.7(1/2) Ø6.35(1/4)
ARNU07GL1G4 Ø12.7(1/2) Ø6.35(1/4)
ARNU09GL1G4 Ø12.7(1/2) Ø6.35(1/4)
ARNU12GL2G4 Ø12.7(1/2) Ø6.35(1/4)
ARNU15GL2G4 Ø12.7(1/2) Ø6.35(1/4)
ARNU18GL2G4 Ø12.7(1/2) Ø6.35(1/4)
ARNU21GL3G4 Ø15.88(5/8) Ø9.52(3/8)
ARNU24GL3G4 Ø15.88(5/8) Ø9.52(3/8)
LOC. Description PCB Connector (Color)
Th1 Thermistor for room air temperature CN-ROOM (Yellow)
Th2 Thermistor for pipe in temperature CN-PIPE_IN (White)
Th3 Thermistor for pipe out temperature CN-PIPE_OUT (Red)

Table of Contents

Related product manuals