EasyManua.ls Logo

LG MULTI V ARNU12GTRA4 - Page 19

LG MULTI V ARNU12GTRA4
520 pages
Print Icon
To Next Page IconTo Next Page
To Next Page IconTo Next Page
To Previous Page IconTo Previous Page
To Previous Page IconTo Previous Page
Loading...
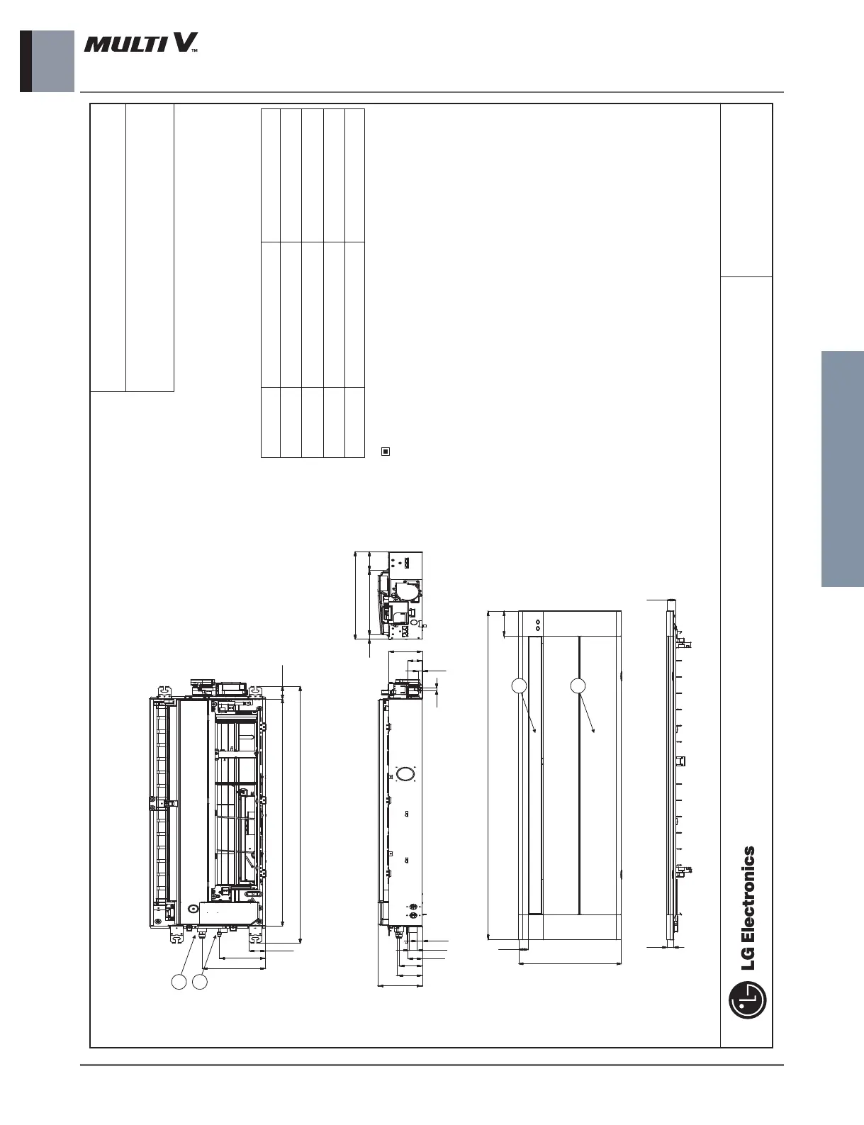
Indoor unit
3. Dimensions
Ceiling Cassette 1-Way _ 7
Indoor Units
CHASSIS CODE: TT
Ceiling Cassette 1-way
ARNU18GTT*4
ARNU24GTT*4
Name
1 Liquid pipe connection
Unit size(18k):ø6.35, (24k):ø9.52
2 Gas pipe connection
Unit size(18k):ø12.7, (24k):ø15.88
3 Air suction grill
4 Air discharge grill
Number Descripition
Note
1. Unit should be installed in compliance with the installation manual
in the product box.
2. Unit shall be grounded in accordance with the local regulations or
applicable national codes.
(unit : mm)
(Panel Name: PT-UTD)
109.5
44
132
15.2
Ø14
57
34
500
46.5
20.6
65.3
180.6
247.5
31.7
57.4
173.8
97.1
91
1420
450
335
96.5
22.3
65.11180
1332
3
2
4
1

Table of Contents

Related product manuals