EasyManua.ls Logo

LG MULTI V ARNU12GTRA4 - Page 217

LG MULTI V ARNU12GTRA4
520 pages
Print Icon
To Next Page IconTo Next Page
To Next Page IconTo Next Page
To Previous Page IconTo Previous Page
To Previous Page IconTo Previous Page
Loading...
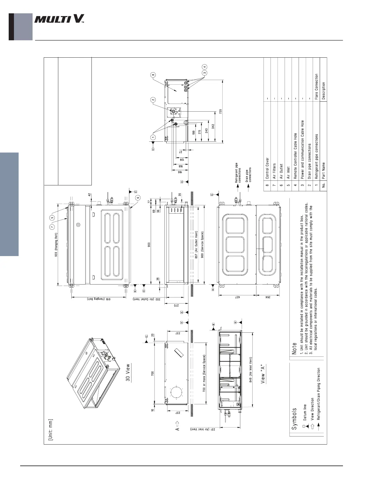
3. Dimensions & Gravity point
Indoor unit
6 _ Ceiling Concealed Duct(Middle Static)
Indoor Units
M1 Chassis
ARNU07GM1A4
ARNU09GM1A4
ARNU12GM1A4
ARNU15GM1A4
ARNU18GM1A4
ARNU24GM1A4

Table of Contents

Related product manuals