EasyManua.ls Logo

LG MULTI V ARNU12GTRA4 - Page 469

LG MULTI V ARNU12GTRA4
520 pages
Print Icon
To Next Page IconTo Next Page
To Next Page IconTo Next Page
To Previous Page IconTo Previous Page
To Previous Page IconTo Previous Page
Loading...
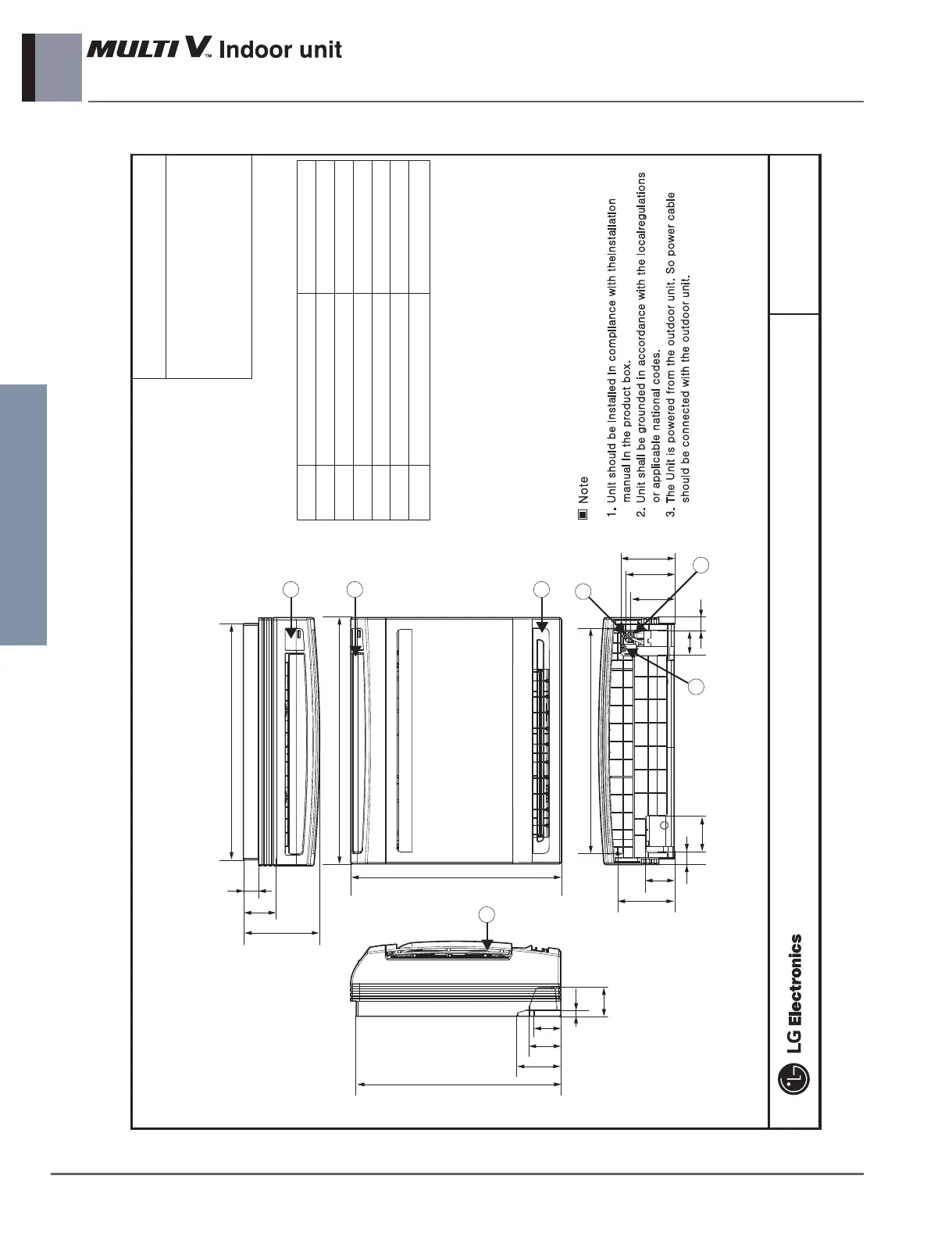
4 _ Console
Indoor Units
3. Dimensions
ARNU07GQAA4
ARNU09GQAA4
ARNU12GQAA4
ARNU15GQAA4
CHASSIS CODE: QA
584
125
90
600
160
80
37
100
639
700
666
210
95
45
80
18
82.5
68.5
150
37
140
120
6
4
5
6
1
2
3
Console
No.
1
2
3
4
5
6
Part Name Remark
Ø6.35
Ø12.7
Liquid pipe connection
Gas pipe connection
Drain pipe connection
Display & signal receiver
Air discharge grill
Air suction grill

Table of Contents

Related product manuals