EasyManua.ls Logo

LG MULTI V ARNU12GTRA4 - Page 72

LG MULTI V ARNU12GTRA4
520 pages
Print Icon
To Next Page IconTo Next Page
To Next Page IconTo Next Page
To Previous Page IconTo Previous Page
To Previous Page IconTo Previous Page
Loading...
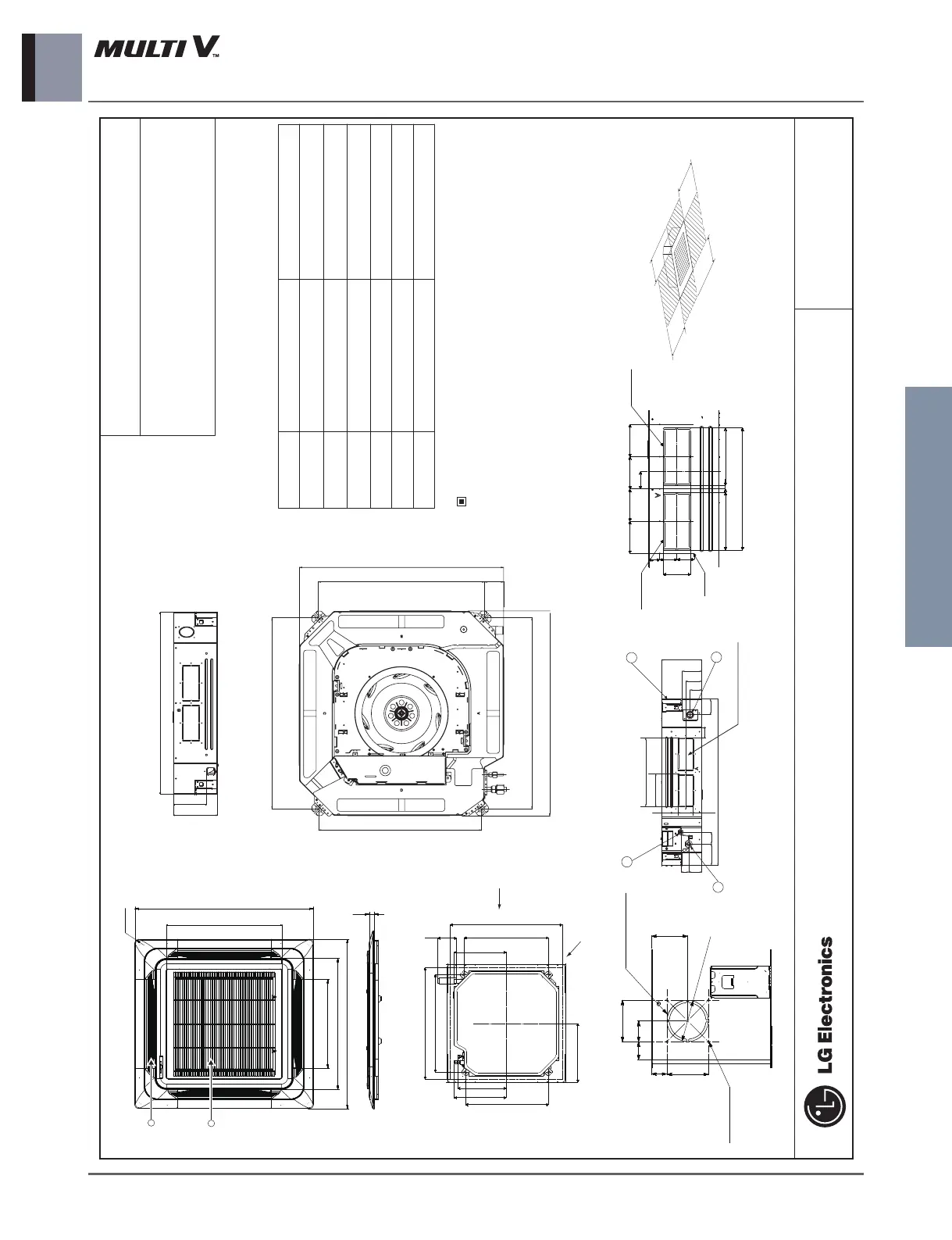
Indoor unit
Ceiling Cassette 4-way _ 9
Indoor Units
3. Dimensions
CHASSIS CODE: TP
Ceiling Cassette 4-way
ARNU24GTP*4
ARNU28GTP*4
ARNU30GTP*4
Note
1. Unit should be installed in compliance with the installation manual
in the product box.
2. Unit shall be grounded in accordance with the local regulations or
applicable national codes.
684
840
671
787
787
840
Name
1
Liquid pipe connection
2
Gas pipe connection
3
Drain pipe connection
4
Power supply connection
5
Air discharge grill
6
Air suction grill
Number Descripition
Unit size(24k, 28k, 30k):ø9.52
Unit size(24k, 28k, 30k):ø15.88
(unit : mm)
204
804
154
99
82
60
840
60
350
165
80
53.5
108
2
04
40
65
4
3
1
2
Branch Duct Connection
79
41.5
950
25
614(Inlet Grille)
500(Air outlet Hole)
4-R20
737
950
5
6
475
420
420
393
870-920(CEILING OPENING SPACE)
786(SUSPENSION POSITION)
300
OR LESS
682(SUSPENSION POSITION)
669(SUSPENSION POSITION)
870-920(CEILING OPENING SPACE)
Ceiling opening
B
A
OUTDOOR AIR INTAKE
(DIRECT CONNECTION)
BRANCH DUCT
CONNECTION
BRANCH DUCT
CONNECTION
13-
ø
3, 3 Hole
13-
ø
3, 3 Hole
ø70
71
350
165
79
50 50 32
92 92 92 92
50
165
10
31
71
26
62
35
B ARROW VIEW
A ARROW VIEW
VP25(Φ32)
500mm or more*
500mm or more*
• REQUIRED SPACE
500mm or more*
500mm or more*

Table of Contents

Related product manuals