EasyManua.ls Logo

Linde E25 - Power Supply

Linde E25
168 pages
Print Icon
To Next Page IconTo Next Page
To Next Page IconTo Next Page
To Previous Page IconTo Previous Page
To Previous Page IconTo Previous Page
Loading...
Service Training
Section 2.6
Page 60
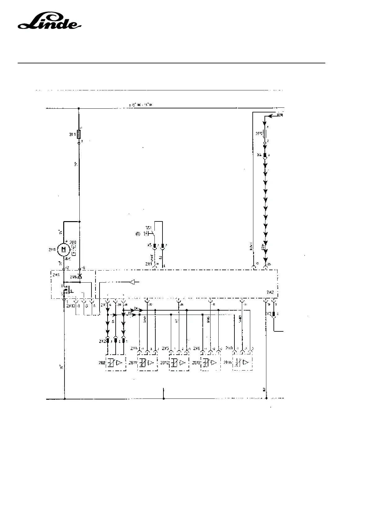
2.6.7.1.1 POWER SUPPLY
The power supply for the electronic control is via voltage converter U1. When the key switch S1 is turned
on, the 24 VDC from the voltage converter are applied via fuse 2F2 to 2X1:25. The control is supplied with
battery negative via the source terminal of the power unit. Sensors on the control valve sense the movement
of the hydraulic control levers. Furthermore, a speed sensor is mounted in hydraulic motor 2M1 to control
the motor speed during steering. These sensors are supplied with a d.c. voltage as soon as the supply voltage
is applied to the control unit. The sensors are provided with +15 V via terminal 2X1:8. The negative voltage
for the sensors is via terminal 2X1:6.

Table of Contents

Related product manuals