EasyManua.ls Logo

Linde E25 - Control of the Various Work Functions

Linde E25
168 pages
Print Icon
To Next Page IconTo Next Page
To Next Page IconTo Next Page
To Previous Page IconTo Previous Page
To Previous Page IconTo Previous Page
Loading...
Service Training
Section 2.6
Page 63
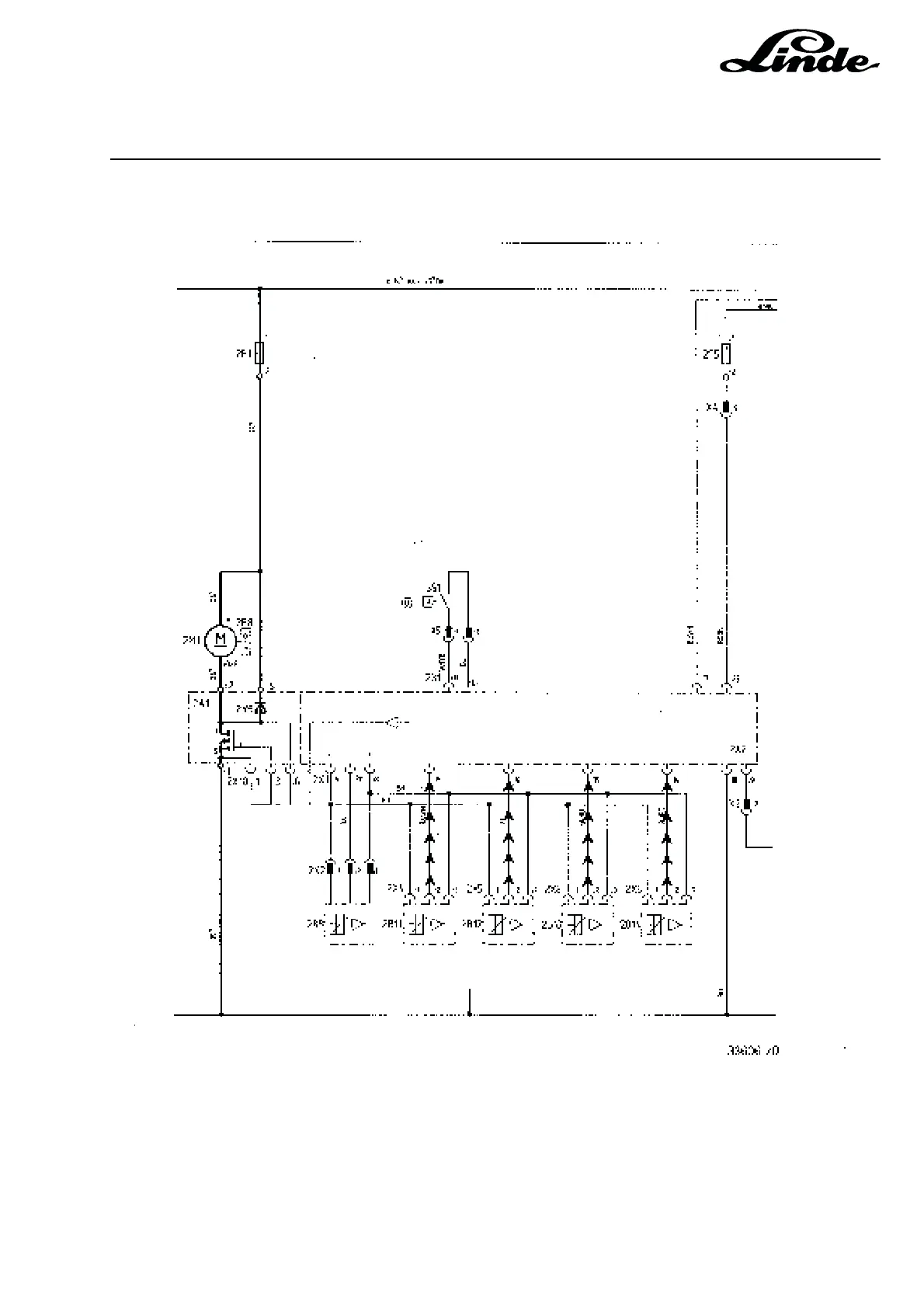
2.6.7.1.4 CONTROL OF THE VARIOUS WORK FUNCTIONS
All speeds of the working hydraulics can be regulated with infinitely-variable control. A distance sensor in
each valve block of the control valve block senses how far the control lever in question has been moved and
then sets the motor speed via the electronic control accordingly.
The motor speed is sensed with the speed sensor in the pump motor and adjusted as required. The output
signal of the distance sensors 2B11, 2B12, 2B13 and 2B14 ranges from 3.75 V to 11.25 V.

Table of Contents

Related product manuals