EasyManua.ls Logo

Linde E25 - Traction Enable from Series 7;95

Linde E25
168 pages
Print Icon
To Next Page IconTo Next Page
To Next Page IconTo Next Page
To Previous Page IconTo Previous Page
To Previous Page IconTo Previous Page
Loading...
Service Training
Section 2.6
Page 39
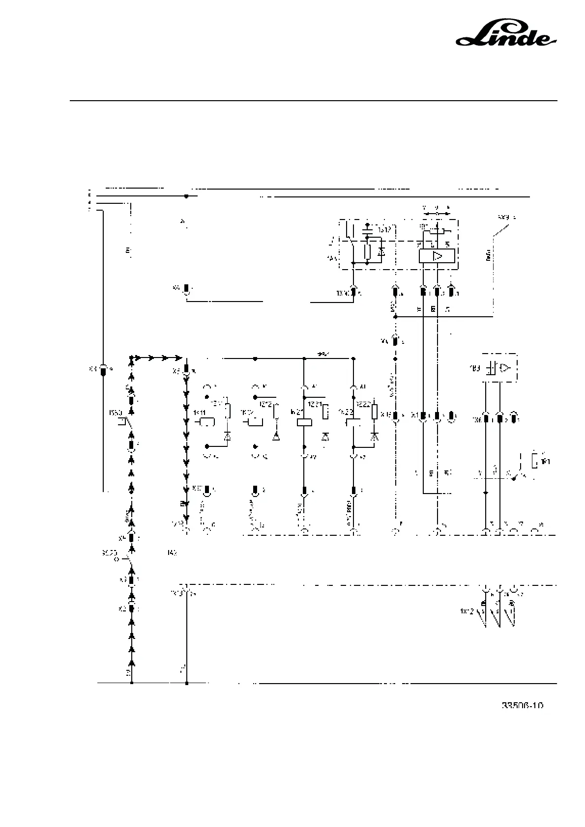
2.6.6.2.2 TRACTION ENABLE FROM SERIES 7/95
Battery negative is applied to the traction module 1X13:21 via seat switch 1S50 and overhead guard switch
9S20.
When seat switch 1S50 or overhead guard switch 9S20 is opened, the timer relay opens after a delay of
approx. 2 seconds in order to prevent inappropriate switching when travelling on an uneven roadway.

Table of Contents

Related product manuals