EasyManua.ls Logo

Linde E25 - Enable Signal, Thermal Sensor and Cut-Out with Discharged Battery (from Series 7;95)

Linde E25
168 pages
Print Icon
To Next Page IconTo Next Page
To Next Page IconTo Next Page
To Previous Page IconTo Previous Page
To Previous Page IconTo Previous Page
Loading...
Service Training
Section 2.6
Page 62
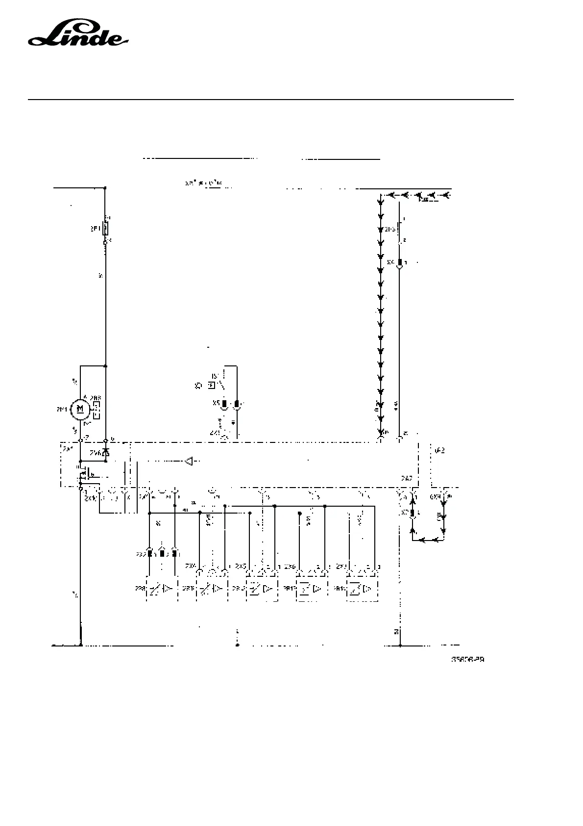
2.6.7.1.3 ENABLE SIGNAL, THERMAL SENSOR AND CUT-OUT WITH DISCHARGED BATTERY
(FROM SERIES 7/95)
The working hydraulics are enabled as soon as switch 9S20 on the overhead guard is operated. On trucks
from series 7/95 it is no longer necessary to actuate the seat switch to be able to work with the working
hydraulics. As soon as the battery is discharged over 80 % or the temperature in the pump motor exceeds
160 °C, the speed of the working hydraulics is cut in half with a cut-out contact in the combined instrument.
In these cases the battery negative signal applied to 2X1:9 is disconnected by combined instrument 6P2.

Table of Contents

Related product manuals