EasyManua.ls Logo

Linde E25 - Traction Enable; Traction Enable to Series 6;95

Linde E25
168 pages
Print Icon
To Next Page IconTo Next Page
To Next Page IconTo Next Page
To Previous Page IconTo Previous Page
To Previous Page IconTo Previous Page
Loading...
Service Training
Section 2.6
Page 38
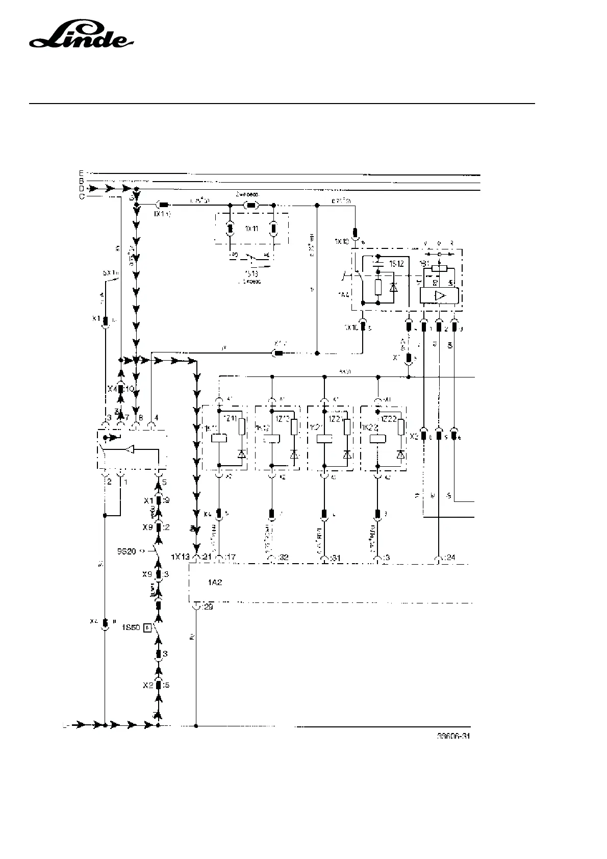
2.6.6.2 TRACTION ENABLE
2.6.6.2.1 TRACTION ENABLE TO SERIES 6/95
.
The timer 1A3 for the seat switch controls the enable signals for the electronic traction and lift control unit.
Battery negative is applied to 1A3:5 via seat switch 1S50 and overhead guard switch 9S20. When the key
switch is turned on, battery positive is applied to 1A3:8 via line D. The relay in timer 1A3 makes and applies
battery negative to traction control unit 1X13:21 via 1A3:7.

Table of Contents

Related product manuals