EasyManua.ls Logo

Linde E25 - Fans; Fan Method of Operation until Series 6;95

Linde E25
168 pages
Print Icon
To Next Page IconTo Next Page
To Next Page IconTo Next Page
To Previous Page IconTo Previous Page
To Previous Page IconTo Previous Page
Loading...
Service Training
Section 2.6
Page 68
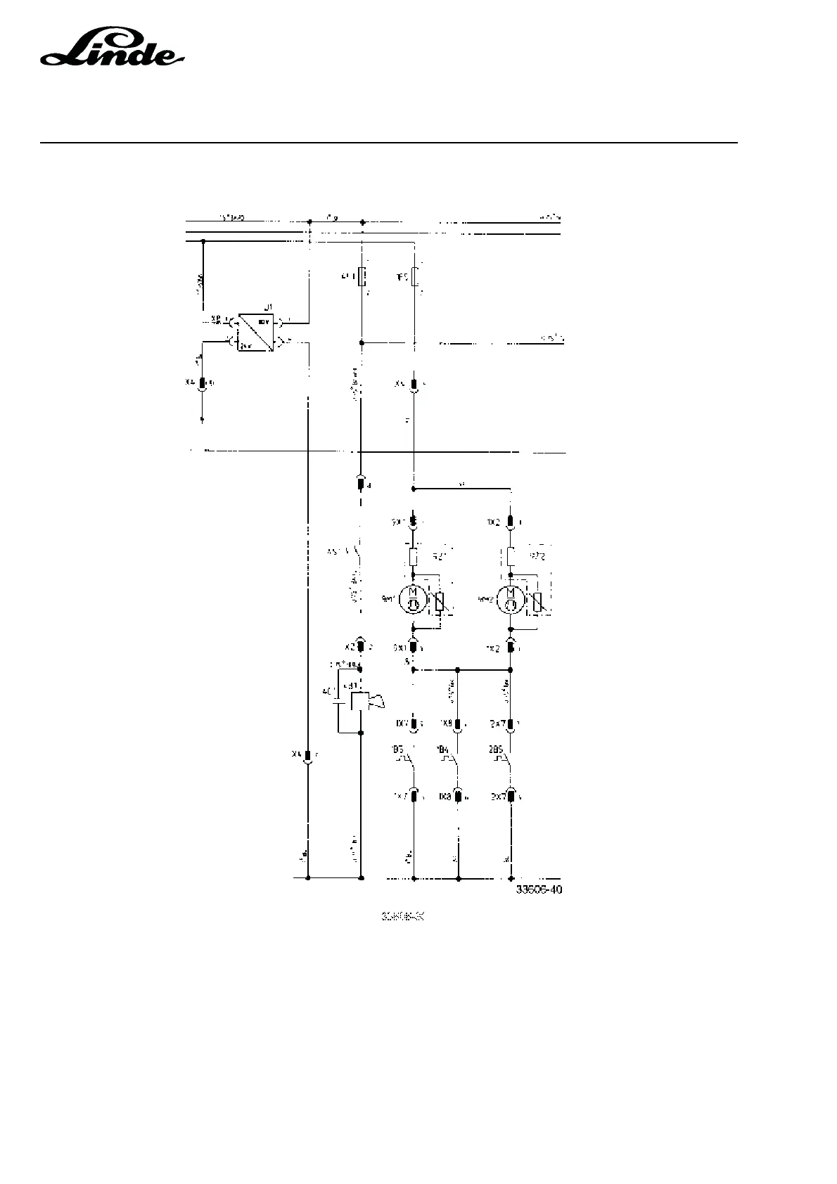
2.6.8 FANS
2.6.8.1 FAN METHOD OF OPERATION UNTIL SERIES 6/95
The fans 9M1 and 9M2 are supplied with 24 V on the positive side by voltage converter U1 via fuse 1F5.
When the temperature of the traction motors or pump motors rises to over 80 °C, temperature switches 1B4,
1B5 and 2B5 make, connecting battery negative to the fans.

Table of Contents

Related product manuals