EasyManua.ls Logo

LS tractor MT563 - Fuel Tank; Instrument Panel & Indicators

LS tractor MT563
254 pages
Print Icon
To Next Page IconTo Next Page
To Next Page IconTo Next Page
To Previous Page IconTo Previous Page
To Previous Page IconTo Previous Page
Loading...
5 -20
(2) Fuel tank
Fuel and Fuel tank Capacity:
See chapter 5-3, “Lubricants and Capacity” or
the last page in this manual.
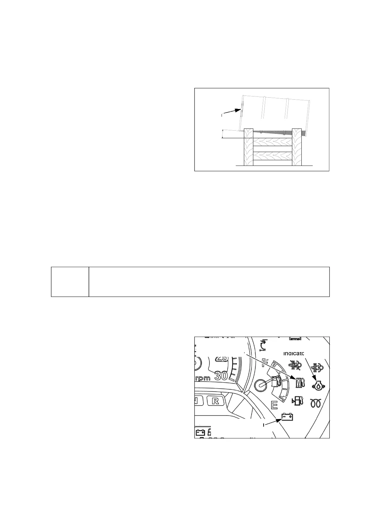
If contaminants like water or dusts are mixed in
the fuel, it may cause a severe damage to the
engine. The fuel storage facility must be
equipped as shown in the right figure.
If possible, fill the tank at the gas station with fuel.
Using Diesel for winter
General diesel fuel tends to generate paraffin
dregs in cold weather which may cause a bad
engine start. Thus, it is recommended to use
diesel for winter in cold weather.
Drum
Impurities
Checking Fuel level and filling the tank
Check the fuel gauge of the tractor fuel tank and if it’s not sufficient, fill the fuel tank with diesel fuel.
For further information about diesel fuel, see chapter 5-1-(3), 5-1-(4), 5-1-(5) in this manual.
After finishing work, fill the fuel tank fully. As the temperature drops down at night,
the humidity in the fuel tank is condensed, and may be mixed with the fuel.
Notice
Engine oil pressure
indicator
(3) Instrument panel & Indicators
Check if the indicators are normally turned on/off
before starting engine or while operating
frequently and periodically.
If the engine oil pressure indicator and
battery charging indicator are turned on while
the engine is running, stop the engine
immediately and check the engine lubrication
system and battery charging system. If possible,
contact your authorized local dealer for check.
You must drain water in the fuel filter when the
fuel filter warning indicator lights.
For further information about indicators, refer to
the chapter 3-1-(1), “Instrument panel” in this
manual.
Battery charging
indicator
Fuel filter
warning indicator

Table of Contents

Related product manuals