EasyManua.ls Logo

Miller Axcess E 300 - Section 5 − Specifications for Axcess E 450; Specifications; Environmental Specifications; Dimensions and Weight

Miller Axcess E 300
108 pages
Print Icon
To Next Page IconTo Next Page
To Next Page IconTo Next Page
To Previous Page IconTo Previous Page
To Previous Page IconTo Previous Page
Loading...
E450 Spec
OM-244 814 Page 19
SECTION 5 SPECIFICATIONS FOR AXCESS E 450
. Appearance of actual unit may vary from unit shown in manual.
5-1. Specifications
Input
Power
Rated
Welding
Output
Voltage
Range
Wire Feed
Speed
Range**
Wire
Diameter
Range
Max
Open
Circuit
Voltage
DC
Amperes Input At Rated Load Output 60 Hz,
Three-Phase
Input
kVA
Input
KW
208 V 230 V 380 V 400V 460 V 575 V
Three
Phase
450 A @
36.5 V DC,
100%
Duty
Cycle
10-44 Standard:
50-1400
ipm
(1.3-35.6
mpm)
.035-3/32 in.
(0.8-1.6 mm)
75 54.0
(0-1A*)
49.0
(0-1A*)
29.0
(0-1A*)
28.0
(0-1A*)
24.0
(0-1A*)
19.0
(0-1A*)
19.9
(0.8*)
19.2
(0.17*)
*While idling; Input amperage fluctuates while idling and is always less than one Ampere. Use one Ampere for power efficiency calculations.
**Wire feed speed ranges are for GMAW welding. While pulse welding, wire feed speed ranges may be more limited.
5-2. Environmental Specifications
IP Rating
IP 23C
This equipment is designed for outdoor use. It may be stored, but is not intended to be used outside during precipitation unless sheltered.
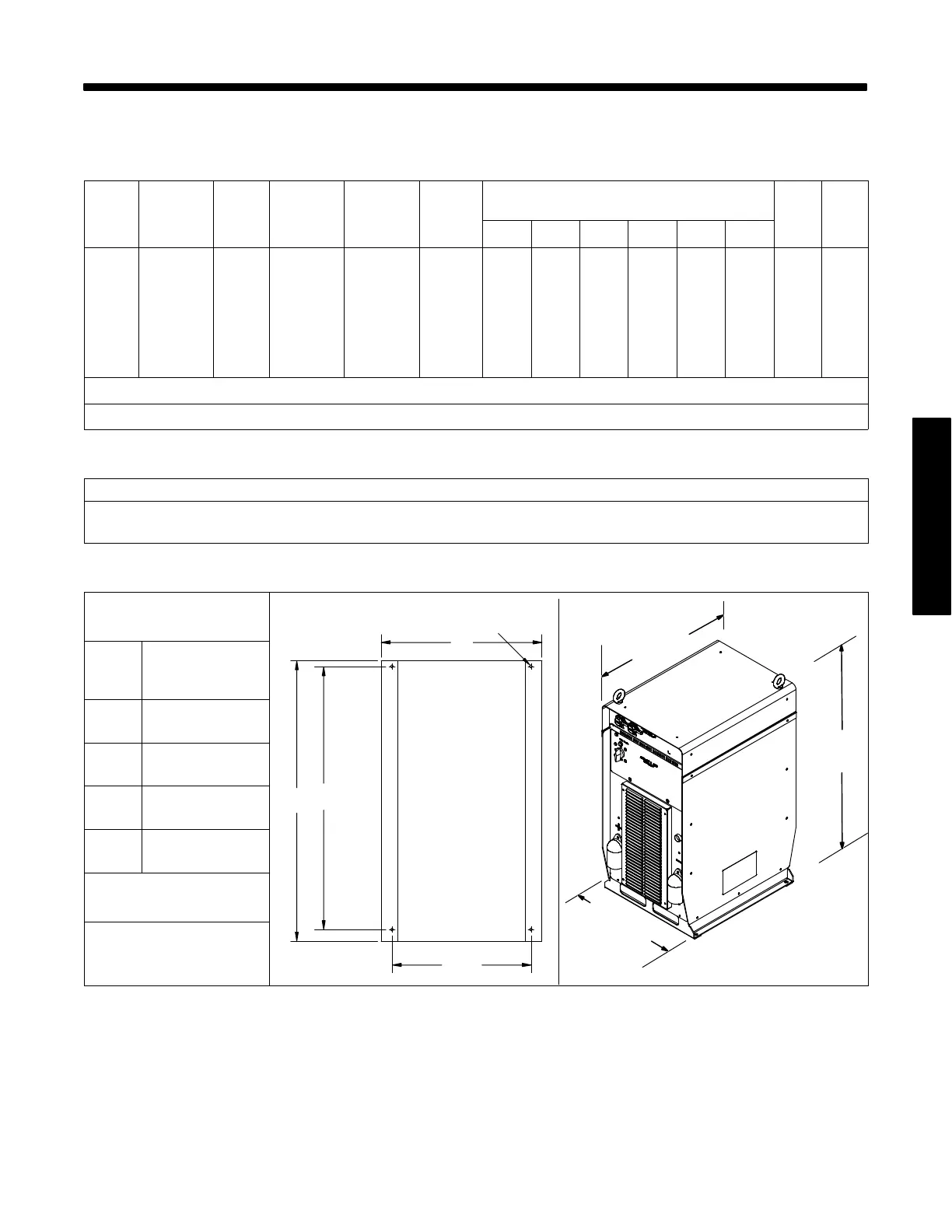
5-3. Dimensions And Weight
Hole Layout Dimensions
A
B
C
E
D
21-3/4 in.
(552 mm)
34-1/2 in.
(876 mm)
245 733-A
17-3/32 in.
(434 mm)
A
17-3/32 in. (434
mm)
B 17-3/8 in. (441 mm)
C 19-3/32 in. (485 mm)
D 16-3/32 in. (409 mm)
E 1/2 in. (13 mm)
Weight
168 lb (76 kg) Net
185 lb (84 kg) Ship

Table of Contents

Related product manuals