EasyManua.ls Logo

Miller Axcess E 300 - Section 14 − Electrical Diagrams

Miller Axcess E 300
108 pages
Print Icon
To Next Page IconTo Next Page
To Next Page IconTo Next Page
To Previous Page IconTo Previous Page
To Previous Page IconTo Previous Page
Loading...
Circuits
OM-244 814 Page 63
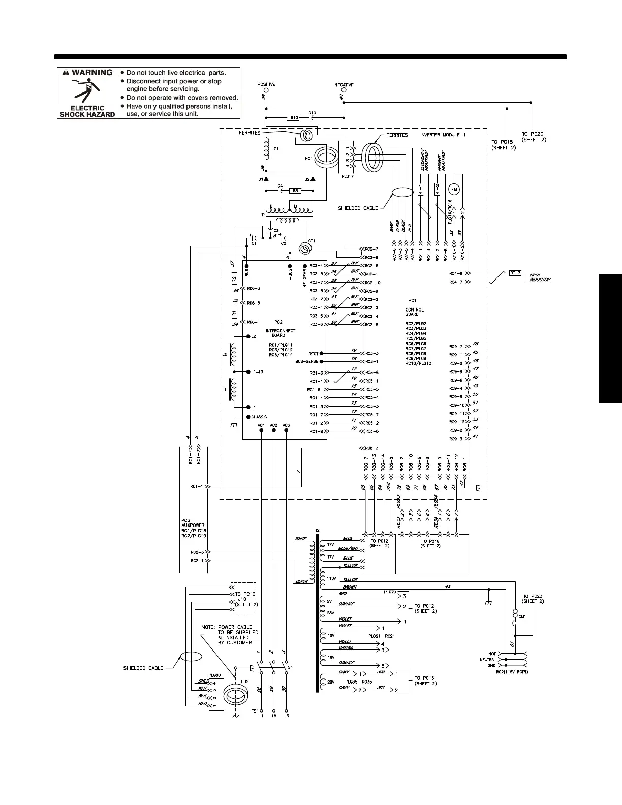
SECTION 14 ELECTRICAL DIAGRAMS
248 763-E (Part 1 Of 2)
Figure 14-1. Circuit Diagram For Axcess E 300 (1 Of 2)

Table of Contents

Related product manuals