EasyManua.ls Logo

Mitsubishi Lancer Evolution VI - Page 7

Mitsubishi Lancer Evolution VI
447 pages
Print Icon
To Next Page IconTo Next Page
To Next Page IconTo Next Page
To Previous Page IconTo Previous Page
To Previous Page IconTo Previous Page
Loading...
GENERAL How to Use This Manual
00-5
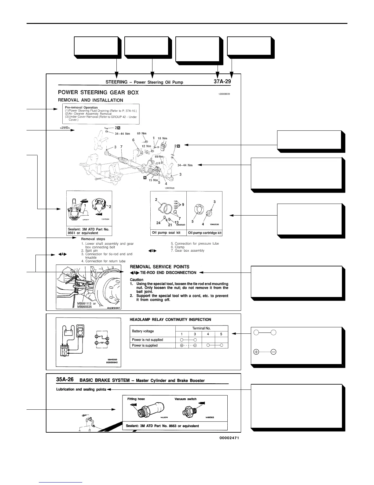
Denotes tightening torque.
For bolts and nuts which do not
have a tightening torque listed,
refer to the Tightening torque”.
indicates that there is
a continuity between the termi-
nals.
indicates terminals to
which battery voltage is applied.
Indicates the
section title.
Indicates the
group num-
ber.
Indicates the
page number.
Indicates the
group title.
Denotes non-reus-
able part.
Repair kit or set parts
are shown. (Only very
frequently used parts
are shown.)
Operating procedures, cau-
tions, etc. on removal, installa-
tion, disassembly and reas-
sembly are described.
The title of the page (following
the page on which the diagram
of component parts is pres-
ented) indicating the locations of
lubrication and sealing proce-
dures.

Table of Contents

Other manuals for Mitsubishi Lancer Evolution VI

Related product manuals