EasyManua.ls Logo

Mitsubishi QJ71BR11 - Page 406

Mitsubishi QJ71BR11
422 pages
To Next Page IconTo Next Page
To Next Page IconTo Next Page
To Previous Page IconTo Previous Page
To Previous Page IconTo Previous Page
Loading...
App - 38 App - 38
MELSEC-Q
APPENDIX
Special Register List (Continued)
Number Name Meaning Explanation
Set by
(When set)
Corresponding
ACPU
D9
Applicable
CPU
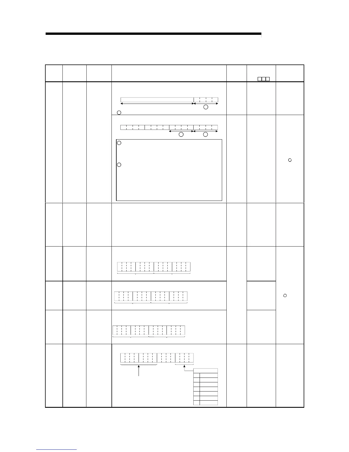
• The operating status of the remote I/O module is stored in the
following format.
B15 B4 B3 B0
1
Vacant
1
Remote I/O module operating status Always 2: STOP
S (Always) New Remote
• The CPU operating state is stored as indicated in the following figure:
B15 B12B11 B8 B7 B4 B3 B0
2
1
1
: Operating state of CPU 0 :RUN
1 :STEP-RUN
2 :STOP
3 :PAUSE
2
: STOP/PAUSE cause 0 :Key switch
1 :Remote contact
2 :Peripheral, computer link,or
operation from some other
remote source
3 :Internal program instruction
Note: Priority is earliest first 4 :Errors
SD203
Operating
state of CPU
Operating
state of CPU
S (Every
END
processing)
D9015 format
change
SD206
Device test
execution
type
0: Test not yet
executed
1: During X
device test
2: During Y
device test
3: During X/Y
device test
• Set when the device test mode is executed on GX Developer.
S
(Request)
New Remote
SD210 Clock data
Clock data
(year, month)
• The year (last two digits) and month are stored as BCD code at
SD210 as shown below:
B15 B12B11 B8 B7 B4 B3 B0
Year Month
Example :
July 1993
H9307
to
to
to to
D9025
SD211 Clock data
Clock data
(day, hour)
• The day and hour are stored as BCD code at SD211 as shown below:
B15
B12B11
B8
B7 B4
B3 B0
Da
y
Hour
Example :
31st, 10 a.m.
H3110
to
to to to
D9026
SD212 Clock data
Clock data
(minute,
second)
• The minutes and seconds (after the hour) are stored as BCD code at
SD212 as shown below:
Example :
B15 B12B11 B8 B7 B4 B3 B0
to
to
to
to
Minute Second
35 min., 48 sec.
(after the hour)
H3548
S/U
(Request)
D9027
+Rem
SD213 Clock data
Clock data
(Higher digits
of year, day
of week)
• The day of the week is stored as BCD code at SD213 as shown below:
B15 B12B11 B8 B7 B4 B3 B0
to to
to
to
Higher digits
of year (0 to 99)
Day of week
0
1
2
3
4
5
6
Sunday
Monday
Tuesday
Wednesday
Thursday
Friday
Saturday
Example :
Friday
H0005
S/U
(Request)
D9028
QCPU
Remote

Table of Contents

Related product manuals