EasyManua.ls Logo

Mitsubishi QJ71BR11

Mitsubishi QJ71BR11
422 pages
To Next Page IconTo Next Page
To Next Page IconTo Next Page
To Previous Page IconTo Previous Page
To Previous Page IconTo Previous Page
Loading...
App - 39 App - 39
MELSEC-Q
APPENDIX
Special Register List (Continued)
Number Name Meaning Explanation
Set by
(When set)
Corresponding
ACPU
D9
Applicable
CPU
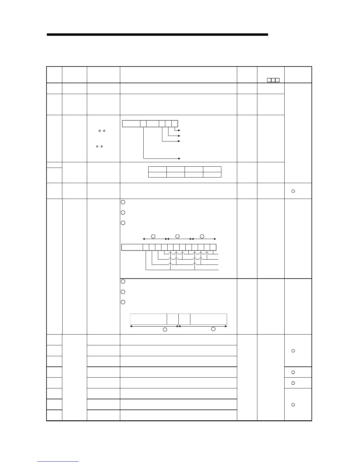
SD240 Base mode
0: Automatic mode
1: Detail mode
• Stores the base mode. S (Initial) New
SD241
No. of
extension
bases
0
: Main only
1 to 7: No. of
extension
bases
• Stores the maximum number of the extension bases being installed. S (Initial) New
SD242
A/Q base
differentiation
Base type
differentiation
0: QA
B is
installed
(A mode)
1: Q
B is
installed
(Q mode)
B0
Fixed to 0
Basic base
B1B2B7
1st extension
base
to
2nd extension
base
7th extension
base
to
When no extension
base is installed, the
value is fixed to 0.
S (Initial) New
SD243
SD244
No. of base
slots
No. of base slots
SD243
Extension 3 Extension 2 Extension 1 Main
Extension 7 Extension 6 Extension 5 Extension 4
SD244
B15 B12 B11 B8 B7 B4 B3 B0
• As shown above, each area stores the number of slots being installed.
S (Initial) New
QCPU
Remote
SD250
Loaded
maximum I/O
Loaded maximum
I/O No.
• When SM250 goes from OFF to ON, the upper 2 digits of the final
I/O number plus 1 of the modules loaded are stored as BIN values.
S
(Request
END)
New
+Rem
1
When Xn0 of the installed CC-Link goes ON, the bit
corresponding to the station switches ON.
2
When either Xn1 or XnF of the installed CC-Link switch OFF, the
bit corresponding to the station switches ON.
3
Switches ON when the CPU cannot communicate with the
installed CC-Link.
B0
1st module
2nd module
3rd module
B3B4B7B8
B11B12
B15
Vacant
4th module
Information
of
1
Information
of
2
Information
of
3
S (Error) New
QCPU
Remote
SD280 CC-Link error
Error detection
status
1
When Xn0 of the installed CC-Link goes ON, the bit
corresponding to the station switches ON.
2
When either Xn1 or XnF of the installed CC-Link switch OFF, the
bit corresponding to the station switches ON.
3
Switches ON when the CPU cannot communicate with the
installed CC-Link.
B15 B8B9 B0
8th
module
8th
module
1st
module
1st
module
...
toto
...
Information of
1
Information of
2
S (Error) New QnA
SD290
Number of points
allocated for X
• Stores the number of points currently set for X devices
SD291
Number of points
allocated for Y
• Stores the number of points currently set for Y devices
SD292
Number of points
allocated for M
• Stores the number of points currently set for M devices
+Rem
SD294
Number of points
allocated for B
• Stores the number of points currently set for B devices
+Rem
SD296
Number of points
allocated for SB
• Stores the number of points currently set for SB devices
+Rem
SD302
Number of points
allocated for D
• Stores the number of points currently set for D devices
SD303
Number of points
allocated for W
• Stores the number of points currently set for W devices
SD304
Device
allocation
(Same as
parameter
contents)
Number of points
allocated for SW
• Stores the number of points currently set for SW devices
S (Initial) New
+Rem

Table of Contents

Related product manuals