EasyManua.ls Logo

Monogram ZGP486ND - Page 79

Monogram ZGP486ND
86 pages
Print Icon
To Next Page IconTo Next Page
To Next Page IconTo Next Page
To Previous Page IconTo Previous Page
To Previous Page IconTo Previous Page
Loading...
– 79 –
(Continued Next Page)
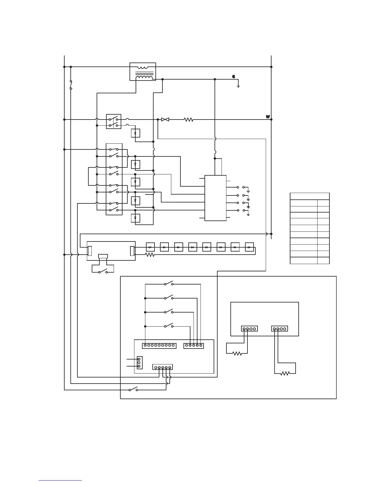
ZGP36 - Cook Top Ladder Diagram
W
G
O
Y
N
V
C
1
2
1
2
1
2
1
2
1
2
GLOW BAR
3.40 TO 3.60 A@116V
COLD RESISTANCE 45 TO 400Ω
W
SAFETY
VALVE
3
240
VAC
COM
1
TRANSFORMER
C
120 VAC INPUT
LOCKOUT VALVE
OPEN SWITCH
W
C
L1
N
SWITCH
VALVES
LED ASM
1
10 11
2
3
4
5
6
Y
Y
G
G
G
N
N
V
O
O
N
K7
BB
POWER
SUPPLY
FRONT PANEL
SWITCH
FRONT PANEL
68Ω
N
RRRRRRRR
C
N
LED
BOARD
LED
BOARD
LED
BOARD
LED
BOARD
LED
BOARD
LED
BOARD
LED
BOARD
LED
BOARD
LADDER FOR ELECTRICAL COMPONENTS
PW
P
J17
J21
L1
N
J16
P
P
P
R
B
S
Y
B
REED SWITCH
DOOR UNLOCK
DOOR LOCK
DOOR STATUS
LOCKOUT VALVE
CLOSE SWITCH
1
1
1
C
NW RW
R
5
3
J20
195
OVEN SENSE
1080Ω
MEAT PROBE
30K - 50K Ω
MAIN LOGIC
BOARD
ERC BOARD
J5
1
1234
4
W
N
J6
1
GND
TIP
1234
4
W
N
GRILL
IGNITION
SYSTEM
DOUBLE
SWITCH
N
SPARK
MODULE
WIRE COLORS
BLACK B
BROWN C
BLUE N
GREEN G
ORANGE O
PURPLE V
RED R
YELLOW Y
GREY S
WHITE W

Related product manuals