EasyManua.ls Logo

NF WF1973 - Millimeter Rack Mounting Dimensions (for 1 Unit)

NF WF1973
169 pages
Print Icon
To Next Page IconTo Next Page
To Next Page IconTo Next Page
To Previous Page IconTo Previous Page
To Previous Page IconTo Previous Page
Loading...
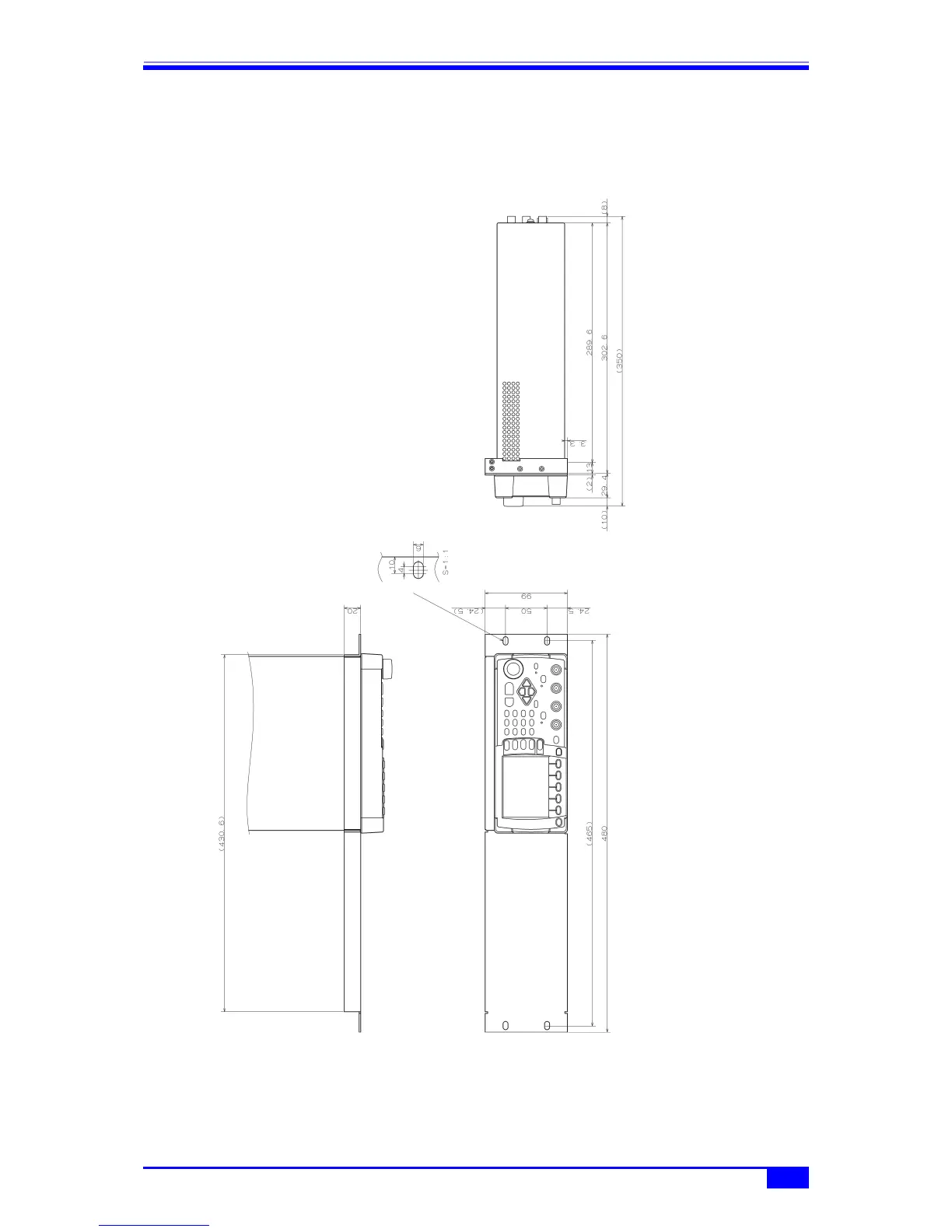
RACK MOUNTING DIMENSIONS
151
WF1973/WF1974
Millimeter rack mounting dimensions (for 1 unit)
Surface treatment
Rack mount adapter: Painted in ultra-light gray (Munsell 6PB9.2/0.1)
Caution
To mount the unit in the rack, do not hold it only with the rack mount adapters.
Be sure to use L-brackets or shelves in the rack to hold the main unit.

Table of Contents

Related product manuals