EasyManua.ls Logo

Nibe FIGHTER 1110 - Options 2, 3, 4, and 5

Nibe FIGHTER 1110
44 pages
Print Icon
To Next Page IconTo Next Page
To Next Page IconTo Next Page
To Previous Page IconTo Previous Page
To Previous Page IconTo Previous Page
Loading...
Docking
17
For the Installer
FIGHTER 1110
Option 2 As option 1
but only with a room sensor (floating condensing)
NK
VVG
BK / JK
SF
AV
SÄV
SÄV
EXP
VXV
AV
AV
AV
AV
SF AV
RG
FG
AV
Oljepanna
C
i
r
k
.
p
u
m
p
V
ä
r
m
e
p
u
m
p
V
a
r
m
v
a
t
t
e
n
T
i
l
l
s
a
t
s
v
ä
r
m
e
L
a
r
m
K
o
n
t
r
o
l
l
e
r
a
a
t
t
v
a
t
t
e
n
f
i
n
n
s
i
p
a
n
-
n
a
n
i
n
n
a
n
d
e
n
i
n
-
k
o
p
p
l
a
s
.
1
R
0
UG
PG
SV
VVB / ACK
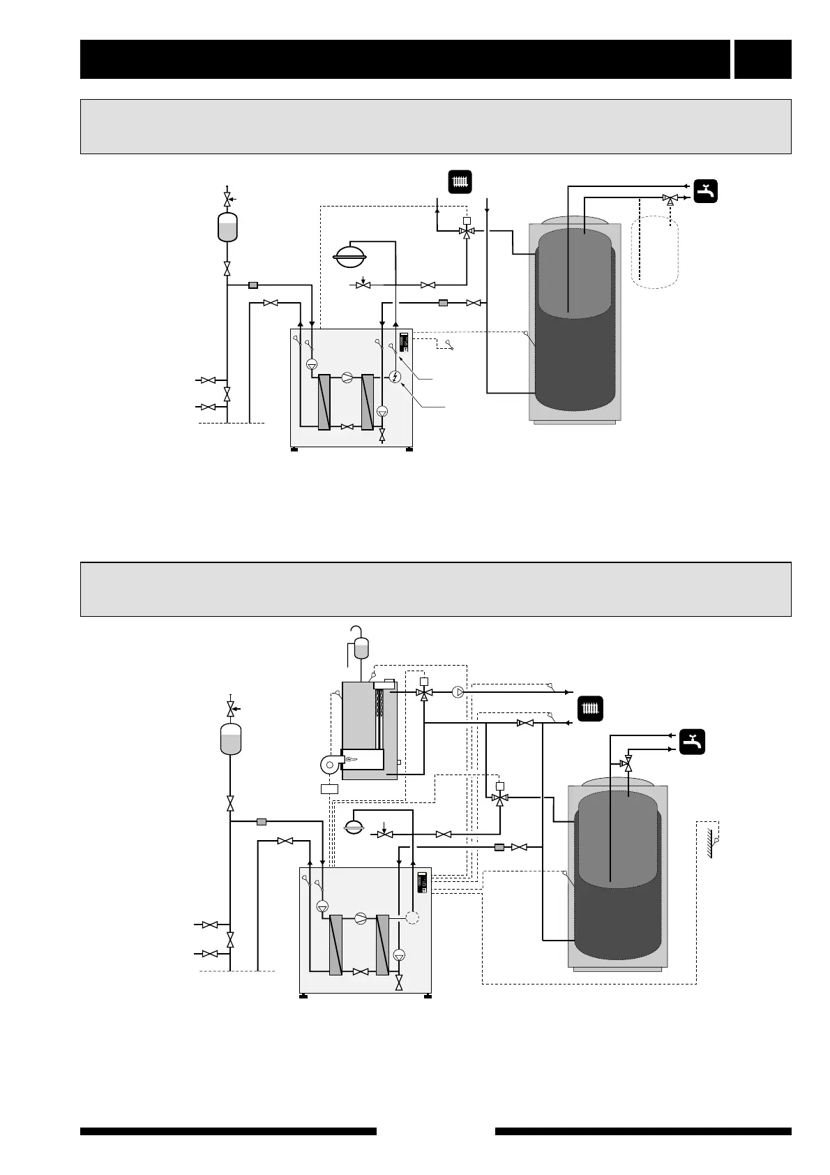
FIGHTER 1110 prioritises charging the hot water
heater (VVB/ACK). When the preset hot water temper-
ature is reached, the reversing valve switches to heat-
ing. If the heat pump cannot manage to keep the cor-
rect flow temperature, the oil-fired boiler starts and the
mixing valve (SV) begins to open from the boiler. This
option is activated automatically when a boiler sensor
(PG) is connected. The flow sensor (FG) and return
sensor (RG) should be positioned on the main pipe to
the radiators.
This option requires accessories OTS 10, and VST 11.
El VVB
NK
VVG
BK / JK
SF
AV
SÄV
SÄV
AV
AV
AV
AV
RTG
VXV
SF
AV
AV
C
i
r
k
.
p
u
m
p
V
ä
r
m
e
p
u
m
p
V
a
r
m
v
a
t
t
e
n
T
i
l
l
s
a
t
s
v
ä
r
m
e
L
a
r
m
K
o
n
t
r
o
l
l
e
r
a
a
t
t
v
a
t
t
e
n
f
i
n
n
s
i
p
a
n
-
n
a
n
i
n
n
a
n
d
e
n
i
n
-
k
o
p
p
l
a
s
.
1
R
0
FG
ELK
EXP
VVB / ACK
FIGHTER 1110 prioritises heating of hot water via a
reversing valve (VXV). When the water heater/accumu-
lator tank (VVB/ACK) is fully charged the reversing valve
(VXV) switches over to the heating circuit. The heat
pump is then operated by the room sensor (RTG). The
immersion heater (ELK) is connected automatically
when the energy requirement exceeds the capacity of
the heat pump. This option is activated automatically
when there is no outdoor sensor connected. This option
requires accessories ETS 11, VST 11 and RG 20.
Option 3
FIGHTER 1110 docked to an oil-fired boiler (floating condensing)
Oil-fired boiler

Table of Contents

Related product manuals