EasyManua.ls Logo

Nibe FIGHTER 1110 - Option 4 - Double Shelled Boiler; Option 5 - Double Shelled Water Heater

Nibe FIGHTER 1110
44 pages
Print Icon
To Next Page IconTo Next Page
To Next Page IconTo Next Page
To Previous Page IconTo Previous Page
To Previous Page IconTo Previous Page
Loading...
Docking18
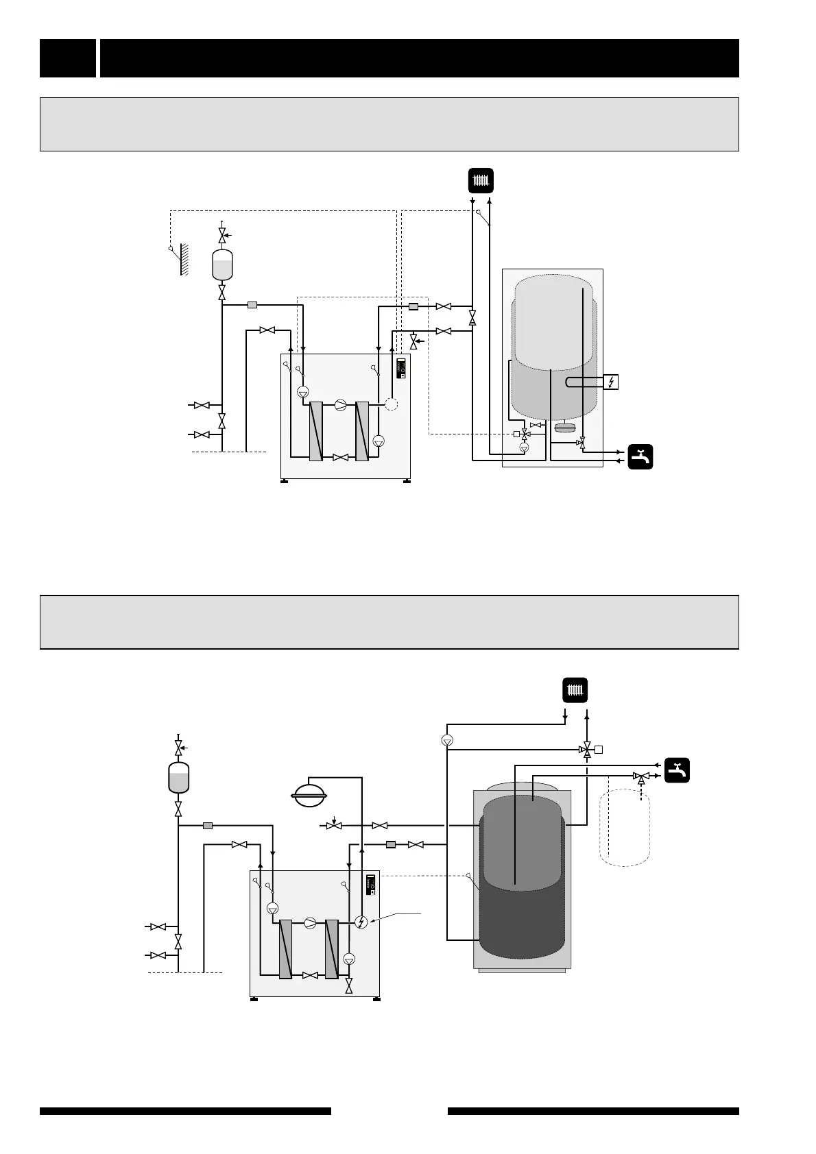
Option 4 FIGHTER 1110 docked to double-shelled
electric boiler/exhaust air heat pump (floating condensing)
FIGHTER 1110 heats the water heater/accumulator
(VVB/ACK) to the temperature set on the flow sensor
(FG). The immersion heater (ELK) starts at a low tem-
perature. The flow sensor (FG) is placed in the sub-
merged tube on the accumulator tank.
This option requires accessory ES 11.
El VVB
NK
BK / JK
AV
AV
SÄV
SÄV
AV
AV
AV
SF
FG
C
i
r
k
.
p
u
m
p
V
ä
r
m
e
p
u
m
p
V
a
r
m
v
a
t
t
e
n
T
i
l
l
s
a
t
s
v
ä
r
m
e
L
a
r
m
K
o
n
t
r
o
l
l
e
r
a
a
t
t
v
a
t
t
e
n
f
i
n
n
s
i
p
a
n
-
n
a
n
i
n
n
a
n
d
e
n
i
n
-
k
o
p
p
l
a
s
.
1
R
0
SF
AV
AV
ELK
EXP
VVB / ACK
For the Installer
FIGHTER 1110
NK
BK / JK
SF
AV
AV
AV
AV AV
AV
FG
SÄV
SF
SV1
C
i
r
k
.
p
u
m
p
V
ä
r
m
e
p
u
m
p
V
a
r
m
v
a
t
t
e
n
T
i
l
l
s
a
t
s
v
ä
r
m
e
L
a
r
m
K
o
n
t
r
o
l
l
e
r
a
a
t
t
v
a
t
t
e
n
f
i
n
n
s
i
p
a
n
-
n
a
n
i
n
n
a
n
d
e
n
i
n
-
k
o
p
p
l
a
s
.
1
R
0
The ground heat pump only heats the heating circuit.
The electric boiler heats the hot water.
When the ground heat pump cannot cope with the
requirements, the SV1 shunt valve opens towards the
electric boiler.
The electric boiler then supplies additional heat.
This
option requires accessory OTS 10.
A permanent resistance of 560 820 is installed on
the boiler sensors terminal block (31). Not included
with OTS 10
Option 5 FIGHTER 1110 docked to a
double-shelled water heater (fixed condensing)

Table of Contents

Related product manuals