EasyManua.ls Logo

Nibe FIGHTER 1110 - Option 6 and Abbreviations

Nibe FIGHTER 1110
44 pages
Print Icon
To Next Page IconTo Next Page
To Next Page IconTo Next Page
To Previous Page IconTo Previous Page
To Previous Page IconTo Previous Page
Loading...
Docking 19
FIGHTER 1110
For the Installer
AV Shutoff valve
BK/JK Rock collector/Ground collector
BV Check valve
ELK Immersion heater Accessory in ETS 11
El VVB Electrical hot water heater
NK Level vessel Included with FIGHTER 1110
SF Particle filter Included with FIGHTER 1110
SÄV Safety valve
PG Boiler temperature sensor Included as in OTS 10
FG Flow sensor Included with FIGHTER 1110
VVG Hot water temperature sensor Included with FIGHTER 1110
UG Outdoor temperature sensor Included with FIGHTER 1110
RTG Room temperature sensor Included as accessory in RG 20
RG Return temperature sensor Included with FIGHTER 1110
VVB/ACK Accumulator with water heater e.g. VPA
VXV Reversing valve Accessory in VST 11
SV Mixing valve Motor shunt (230V)
Abbreviations
NK
UG
FG
BK / JK
RC
SF
AV
AV
AV
BV
SÄV
SÄV
AV
AV
AV
AV
SF
Vedpanna
C
i
r
k
.
p
u
m
p
V
ä
r
m
e
p
u
m
p
V
a
r
m
v
a
t
t
e
n
T
i
l
l
s
a
t
s
v
ä
r
m
e
L
a
r
m
K
o
n
t
r
o
l
l
e
r
a
a
t
t
v
a
t
t
e
n
f
i
n
n
s
i
p
a
n
-
n
a
n
i
n
n
a
n
d
e
n
i
n
-
k
o
p
p
l
a
s
.
1
R
0
Extern alt
befintlig regler-
utrustning.
VVB / ACK
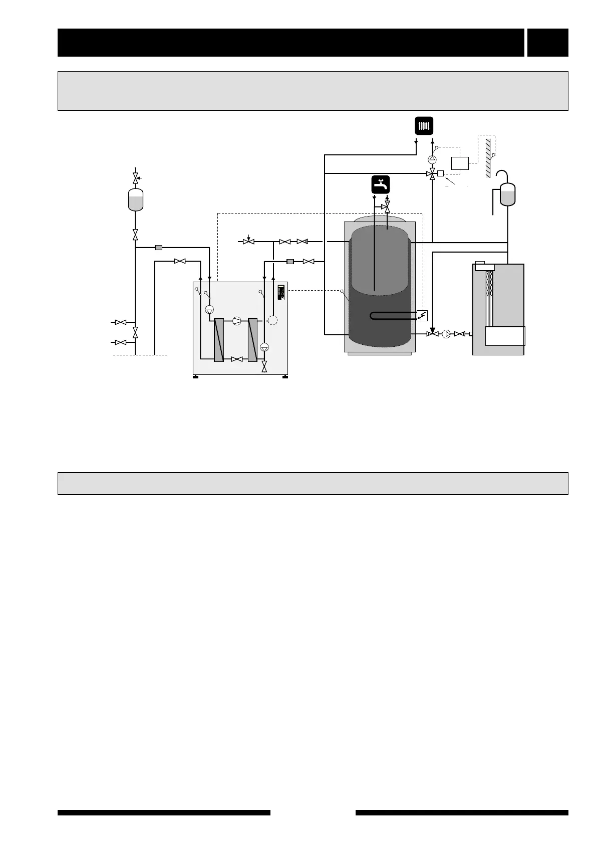
FIGHTER 1110 prioritises loading the hot water
heater/accumulator tank (VVB/ACK). When the wood-
fired boiler is used, the heat pump and immersion
heater are disconnected with a rising temperature on
the flow sensor (FG) and start again when the temper-
ature starts to drop. Self-circulation through the heat
pump is prevented by the check valve (BV). The flow
sensor (FG) is placed in the submerged tube on the
accumulator tank.
This option requires accessory XTS 20
Option 6
FIGHTER 1110 docked to an wood-fired boiler (fixed condensing)
Wood-fired boiler
External or
existing control
equipment

Table of Contents

Related product manuals