EasyManua.ls Logo

Nordmann AT4 - Functional Description

Nordmann AT4
72 pages
Print Icon
To Next Page IconTo Next Page
To Next Page IconTo Next Page
To Previous Page IconTo Previous Page
To Previous Page IconTo Previous Page
Loading...
11
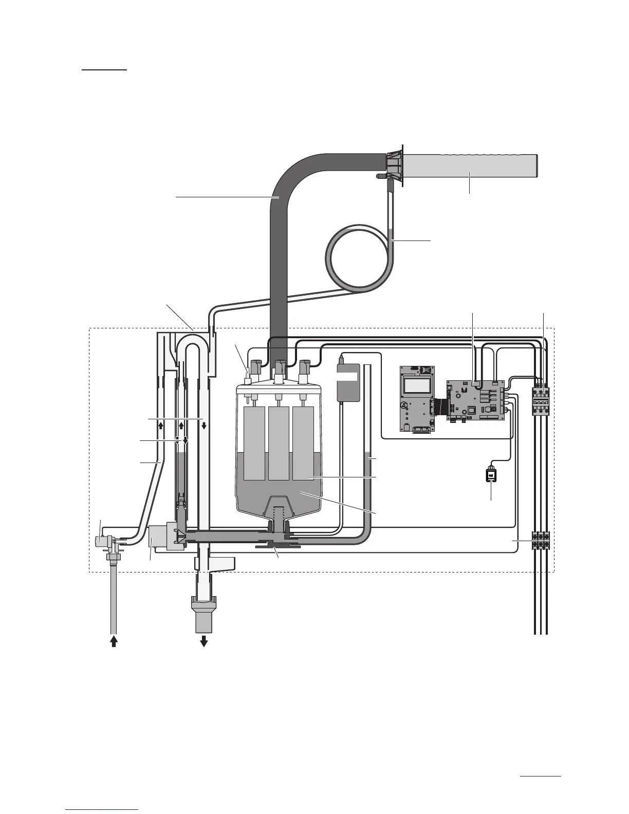
3.4 Functional description
The steam humidier Nordmann AT4 is a pressureless steam generator
that utilizes an electrode heating. The steam humidier Nordmann AT4 is
designed for air humidication via a steam distributor (steam distribution
pipe, fan unit or steam distribution system MultiPipe).
Steam generation
Any time steam is requested, the electrodes are supplied with voltage via
main contactor. Simultaneously, the inlet valve opens and water enters the
steam cylinder from the bottom via water cup and supply line. As soon as the
electrodes come in contact with the water, current begins to ow between
the electrodes, eventually heating and evaporating the water. The more the
electrode surface is exposed to water, the higher is the current consumption
and thus the steam capacity.
Steam distribution pipe
Condensate hose
with siphon
Steam hose
Water cup
Overow hose
Filling and
draining hose
Water supply
hose
Inlet valve
steam cylinder receptacle
Steam cylinder
Electrodes
Level sensor
Drain hose
Control board
Power board
Unit switch
Main contactor
Current sensor
Drain pump
SC pump
Connecting terminals

Table of Contents

Related product manuals