EasyManua.ls Logo

Nordmann AT4 - Wiring Diagram Nordmann AT4 Double Units

Nordmann AT4
72 pages
Print Icon
To Next Page IconTo Next Page
To Next Page IconTo Next Page
To Previous Page IconTo Previous Page
To Previous Page IconTo Previous Page
Loading...
68
MODULE B
PEP1NP
X6
CPU BOARD
J3
X25
MAINSC SYSTEM DRAIN INLET
INLETDRAINSC
X24
L' N L' N L' N L' N
X27
MAIN
X23
LEVEL SENSOR
CURRENT SENSOR
S1S2
LEVEL SENS.
EXT. SUP.
5V GND 24V
X14
REMOTE
LINK UP
EXTERNAL CON.CPU BOARD
D+ D– GND 5V 24V
X15
J2
PEPESC2SC1NL1
X1
F1 6.3 AT
INLET DRAIN CONTA.
L'NL'N
X4
CONT. SIGN.
GNDINV+
X10
JP3
L'N
X3
24V 5V
5V
24V
SAFETY CHAIN
CONTACTORDRAININLETSC SYSTEM
LEVEL SENSOR
GND
SWITCH
L1FUNL1SWNSW
X2
SC
L'N
X16
S1S2
LEVEL SENS.
CURRENT SENSOR
X5
MAIN SUPPLYMODULE B
PEP1NP
X6
LIM. SIGN.
GNDIN
EXT. SUP.
5V GND 24V
X11
X14
F4 315mAT
F3 315mAT
JP1
JP4
JP5
J1
J4
M
L1 N
H1
1
Error Service Steam UnitOn
2 3 4 5 6 7 8 9 10
+
P / PI
+
P / PI
A1 A4
140Ω...10kΩ
A2
On/Off
A3
L1 L2 L3
Q5
K1
XE1
F5
L1 L2 L3
L1 L2 L3
400 V/3~/50..60 Hz
230 V/3~/50..60 Hz
Q5
F5
L1 N PE
PE
PE
230 V/1~/50..60 Hz
Q5
F5
L1 L2
400 V/2~/50..60 Hz
PE
L1 L2 L3
Q5
K1
Heating Module B
Heating Module A
XE1
F5
L1 L2 L3
L1 L2 L3
400 V/3~/50..60 Hz
230 V/3~/50..60 Hz
Q5
F5
L1 N PE
PE
PE
230 V/1~/50..60 Hz
Q5
F5
L1 L2
400 V/2~/50..60 Hz
AT4
ext.
GND
IN
V+
GND
IN
V+
IN
V+
PE
N
L1
SC2
SC1
JP3
24V 5V
Q6
230 V/1~/50..60 Hz
L1 N PE
F6
B3
K
B2
B1
J
∆p
max.
JP3
24V 5V
XE2XE3XE4
Unit 2Unit 3Last Unit
D+ D– GND 5V 24V
X15
D+ D– GND 5V 24V
X15
D+ D– GND 5V 24V
X15
JP1
JP4
JP5
JP1
JP4
JP5
JP1
JP4
JP5
BAT
Remote Terminal
D+ D– GND 5V 24V
X15
JP1
JP4
JP5
from contactor to cylinder
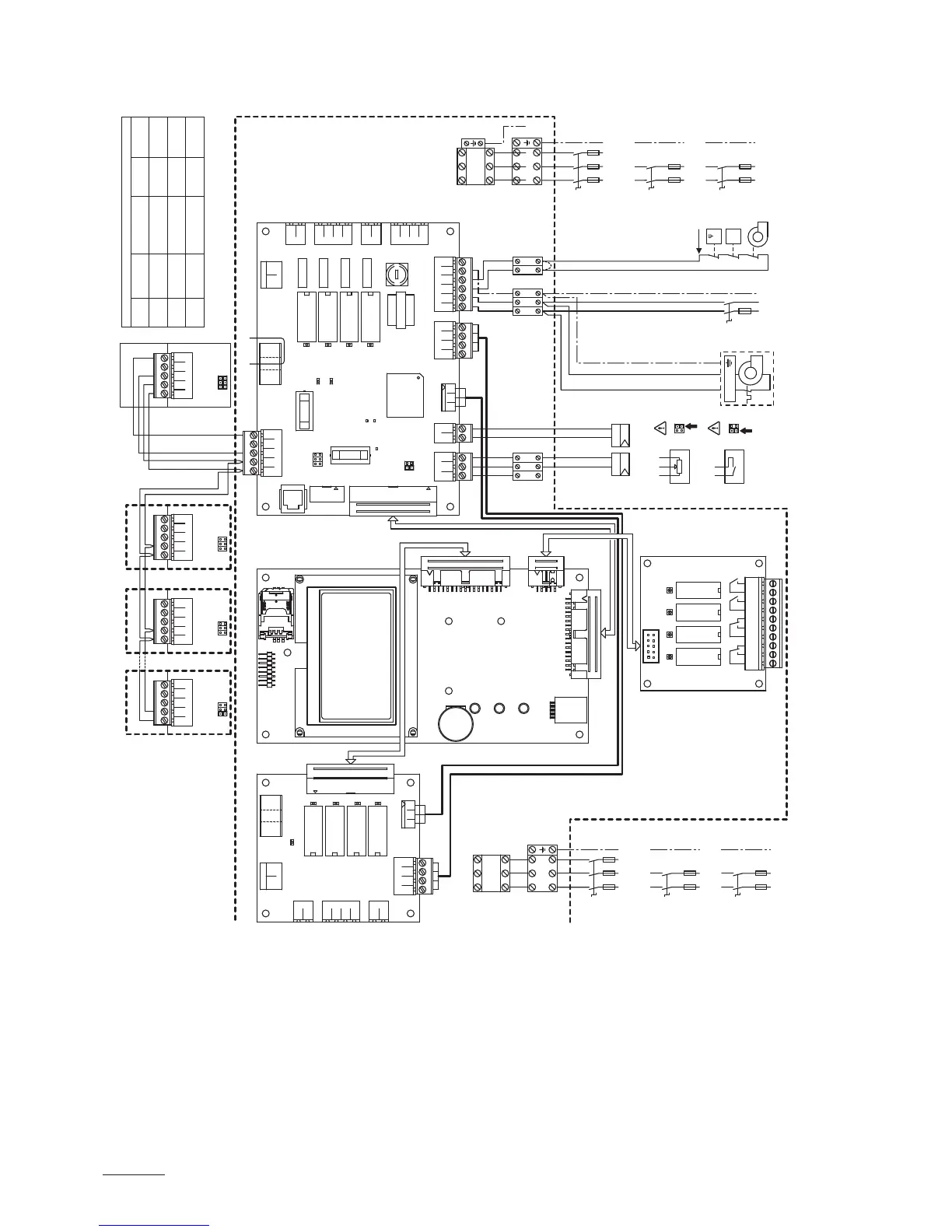
9.2.2 Wiring diagram Nordmann AT4 double units
A1 Continuous controller (active) or
humidity sensor
A2 Controller (passive), set jumper on JP3-5V
A3 On/Off controller, set jumper on JP3-24V
A4 Limitation signal
BAT Backup battery (CR2032, Lithium 3V)
B1 Ventilation interlock
B2 Safety humidistat
B3 Airowmonitor
F1 Internalfuse“Powerboard”
(6.3A,slowacting)
F3 Internalfuse“Powerboard”controlsignal
(315mA,slowacting)
F4 Internalfuse“Powerboard”
24VDCsupply(V+)(315mA,slowacting)
F5 External fuse heating voltage supply
F6 External fuse control voltage supply
H1 Remote operating and fault indication
J Short circuited, if no external monitoring
devices are connected
J2 LinkUpsystem“Powerboard”
JP1 End resistor Remote Terminal **
JP3 Jumper control signal
JP4 Pull up resistor Remote Terminal **
JP5 PulldownresistorRemoteTerminal**
K External safety chain (230V/5A)
K1 Main contactor
M Fan unit
Q5 Externalserviceswitchheating
voltage supply
Q6 Externalserviceswitchcontrol
voltage supply
XE1 Connection terminal heating voltage
XE2 Connection terminal safety chain
XE3 Connection terminal control voltage
XE4 Connection terminal control signal Y
X6 ConnectiontoextensionboardModuleB
X14 Voltage supply extension board
X15 Connection terminal remote panel
Extension board Module B Control board Powerboard
Jumper settings for operation with optional remote terminal **
Jumper Function Remote terminal Unit(s)
in between
Last unit in
the chain
JP1
120Ω end
resistor
X X
JP4
Pull up
resistor
X
JP5
Pull down
resistor
X

Table of Contents

Related product manuals