EasyManua.ls Logo

Nortel AccessNode 2016 - Page 144

Nortel AccessNode 2016
188 pages
Print Icon
To Next Page IconTo Next Page
To Next Page IconTo Next Page
To Previous Page IconTo Previous Page
To Previous Page IconTo Previous Page
Loading...
6-8
Ordering information
AN2016 Cabinet User Guide Rel 1.0 Standard May 1999
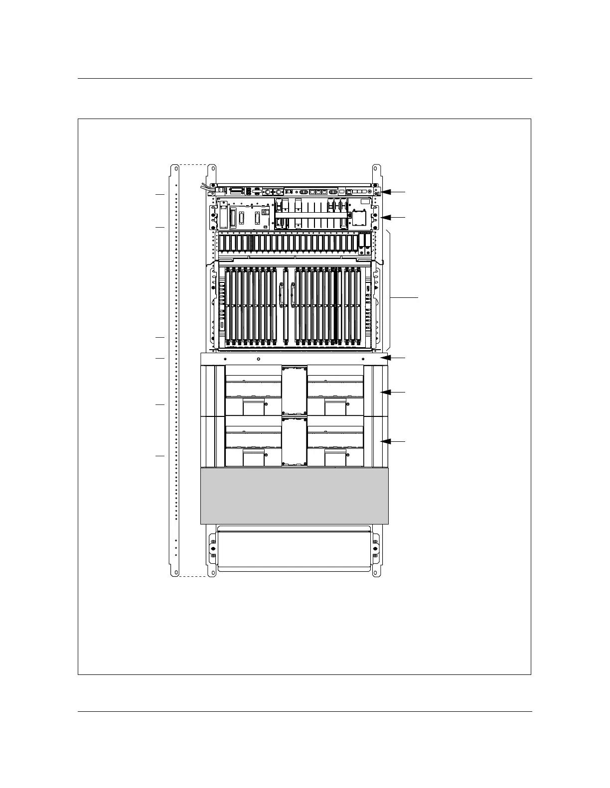
Figure 6-7
864-line configuration (front view frame/bay A)
AN0041.eps
Front view of bay
LCAP 2
BIP 2
CDS 2-2
CDS 1-2
Fan shelf
ABM 2
28
16
38
44
70
78
Reserved and dedicated
positions for future
expansion
(Note)
Note:
The following empty spaces are reserved and dedicated only for
future expansion using CDS shelves or future UE 9000 shelves.

Table of Contents

Related product manuals