EasyManua.ls Logo

Nu-Vu OP-2FM - Door Latch Catch Plate and Hinge Replacement

Nu-Vu OP-2FM
62 pages
Print Icon
To Next Page IconTo Next Page
To Next Page IconTo Next Page
To Previous Page IconTo Previous Page
To Previous Page IconTo Previous Page
Loading...
OP–2FM OWNER'S MANUAL SERVICE AND REPLACEMENT GUIDE
NU–VU® FOOD SERVICE SYSTEMS PO BOX 35 MENOMINEE, MICHIGAN 49858-0035
(800) 338-9886 SALES FAX (906) 863-5889 • SERVICE FAX (906) 863-6322 page 39
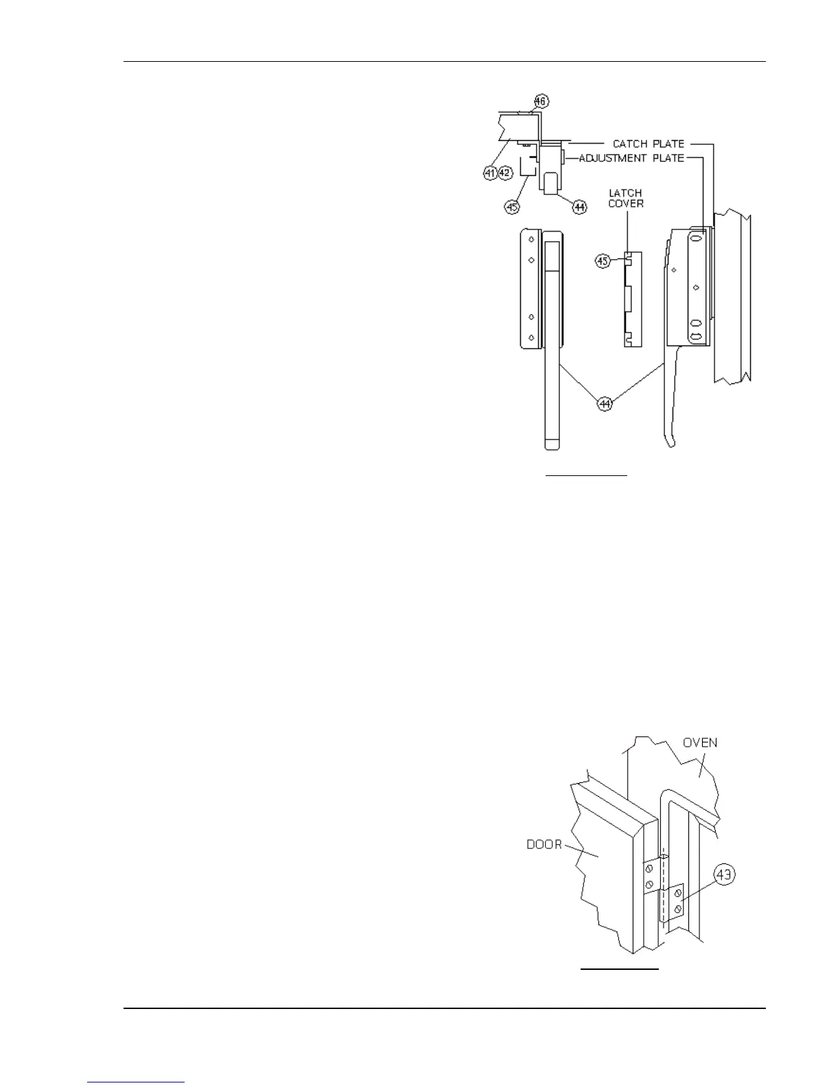
DOOR LATCH, How To Replace:
A. Loosen the two acorn nuts inside the Latch
Cover [45] with a small box wrench. Pull the
Latch Cover straight out from the door to
remove it and remove the two acorn nuts.
B. Loosen and remove the three screws securing
the Door Latch [44] to the latch bracket.
Remove the Door Latch and its adjustment
plate.
C. Position the replacement Door Latch on the
latch bracket. Align the holes in the adjustment
plate with the holes in the Door Latch body
and secure the adjustment plate and Door
Latch to the latch bracket.
D. Adjust the replacement latch to obtain proper
door sealing and closure (refer to Door Latch,
How To Adjust). Tighten the mounting screws
securely.
E. Install the acorn nuts on the ends of the top
and bottom Door Latch screws. Turn the nuts
on all the way until they just contact the back
side of the latch bracket, then loosen them by
1½ to 2 full turns. Install the Latch Cover and
tighten the acorn nuts lightly to hold the Latch Cover in place.
DOOR LATCH CATCH PLATE, How To Replace:
A. Mark the location of the Catch Plate on the face of the unit. Remove the two Catch Plate
mounting screws and remove the Catch Plate (refer to Figure #17).
B. Place the replacement Catch Plate on the face of the unit in the same position as the original.
C. Fasten the Catch Plate in place with the two mounting screws. Tighten them securely.
HINGES, How To Adjust:
Hinges on Flush-Mount Doors are preset at the NU-VU
®
factory and should not need adjustment.
However, if you experience any problems with Door operation please call the NU-VU
®
Service
Department for assistance at (800) 338-9886.
HINGES, How To Replace:
A. Open the Oven Door [41] or Proofer Door [42] until it
is straight out from the face of the unit. Lift the Door
straight up and off of the Door Hinge [43] pins.
B. Remove the bottom half of each Hinge (with the pivot
pin) from the unit. Replace with the identical part
from the new Hinge. Make sure the pivot pin points
up and that the screws are fully seated and tight.
C. Remove the top half of each Hinge from the Door.
Replace with the identical part from the new Hinge.
Make sure that the screws are fully seated and tight.
Fig. #16 – DOOR LATCH
Fig. #17 – DOOR HINGE

Table of Contents

Related product manuals