EasyManua.ls Logo

Omron 3G3MX2 - Wiring

Omron 3G3MX2
440 pages
Print Icon
To Next Page IconTo Next Page
To Next Page IconTo Next Page
To Previous Page IconTo Previous Page
To Previous Page IconTo Previous Page
Loading...
2-6
2-2 Wiring
SYSDRIVE MX2 Series USER'S MANUAL (3G3MX2-A@@@@)
2
Design
2-2 Wiring
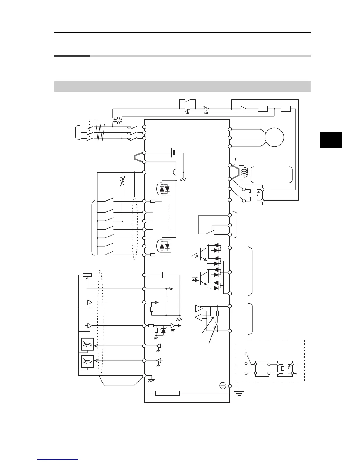
Connection Diagram
Single-phase
3-phase
power
supply
Shorting
bar
Shorting bar
Motor
ELB
MC
ON
R/L1 (L1)
*1
S/L2
T/L3 (N)
*1
24 VDC
MC
S7/EB
S5/TH
S4/GS2
S3/GS1
S2
S1
FS
FV
FI
RP
AM
MP
RS
RS+
PC
P1/EDM
P2
MB
MA
N/
SC
S6
P24
DC reactor
PSC
SC
SC
If any source-logic external
output devices or external
power supply is used, refer to
"Connection to
Programmable Controller
(PLC)" on page 2-22.
Multi-function
outputs (2 outputs)
Multi-function
relay output
Braking Resistor
*2
*1 Connect to terminals L1 and N on a single-phase, 200-V Inverter (3G3MX2-AB@@@).
*2 Optional.
Power: 1/4 W min.
Resistance: 2 kΩ min.
10 VDC power supply
(7 mA Max.)
Analog voltage input
0 to 10 V (10 bits)
Analog voltage
output 0 to 10 V
(10 bits)
Ground to 100 or less for 200-V class
Ground to 100 or less for 400-V class
Analog current input
4 to 20 mA (10 bits)
Pulse input
5 to 24 VDC
(32 kHz Max.)
Pulse output
0 to 10 VDC
(32 kHz Max.)
Serial communication port
(RS-485/Modbus-RTU)
RB
P/+2
+1
W/T3
V/T2
U/T1
M
3~
Remove the short bar
when connecting a
DC reactor.
RB
N/
Regenerative
Braking Unit
*2
P
RB
Braking Resistor
*2
When using a Regenerative Braking Unit
P
N
10 VDC
SC
SC
SC
SC
SC
Approx.
100
Terminal
Resistor
Terminal Resistor
selector switch
Approx.
10 k
Thermistor
Optional board connector
Communications Option Unit
*2
OFF
MC
AX
MC
AX
Multi-function
inputs
(7 contact
inputs)

Table of Contents

Other manuals for Omron 3G3MX2

Related product manuals