EasyManua.ls Logo

Omron SCARA R6Y-XC Series - Page 98

Omron SCARA R6Y-XC Series
203 pages
Print Icon
To Next Page IconTo Next Page
To Next Page IconTo Next Page
To Previous Page IconTo Previous Page
To Previous Page IconTo Previous Page
Loading...
3-60
CHAPTER 3 Installation
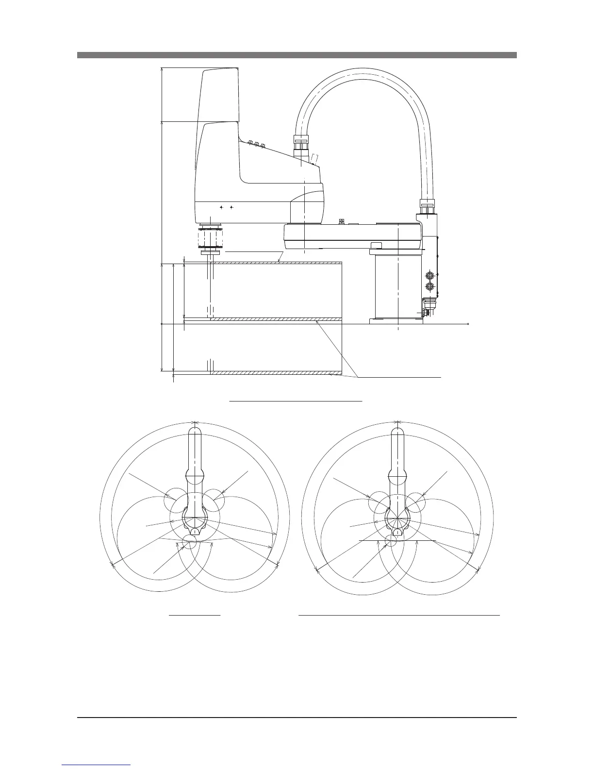
Z-axis 400mm stroke 956
Z-axis 200mm stroke 756
0
200
400
224±2
176
12 8
12
145˚
120˚
120˚
R210
145˚
R700
R350
R104(c)
R95(a)
R60(b)
Interference position
(a) Base flange
(b) Base rear side
(c) Base
R350
123˚
147˚
147˚
R700
R199
123˚
R93(c)
R83(a)
R49(b)
R6YXC700 (Z-axis mechanical stopper position)
0
Z-axis upper end
mechanical stopper position
Z-axis lower end
mechanical stopper position
Working envelope
X and Y-axis mechanical stopper positions (maximum working envelope)
Fig.3-74 R6YXC700

Table of Contents

Related product manuals