EasyManua.ls Logo

Omron SCARA R6Y-XC Series - Page 99

Omron SCARA R6Y-XC Series
203 pages
Print Icon
To Next Page IconTo Next Page
To Next Page IconTo Next Page
To Previous Page IconTo Previous Page
To Previous Page IconTo Previous Page
Loading...
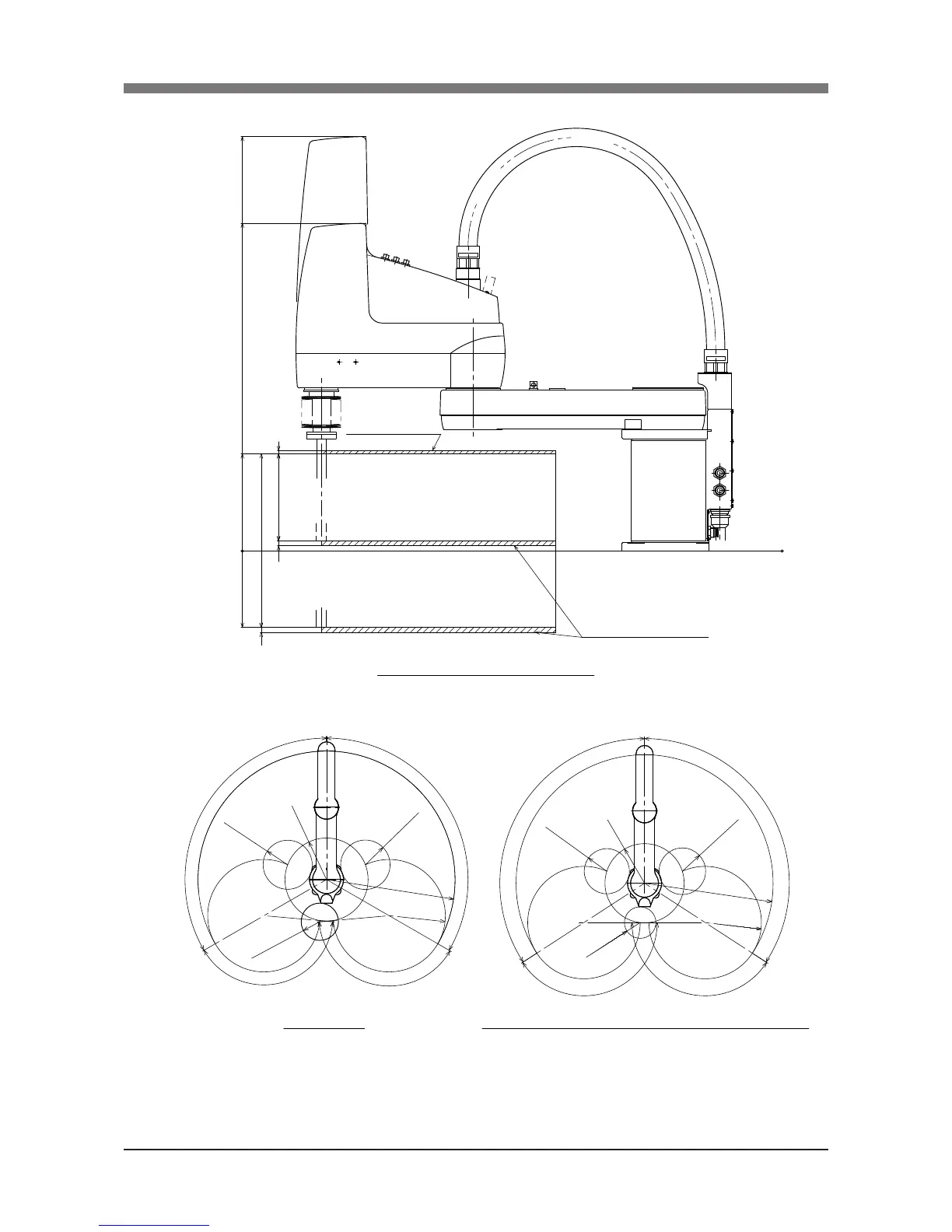
3-61
CHAPTER 3 Installation
0
Z-axis 200mm stroke 756
Z-axis 400mm stroke 956
200
400
224±2
176
12
812
R800
R350
145˚
145˚
R259
120˚
120˚
R153(c)
R154(a)
R116(b)
Interference position
(a) Base flange
(b) Base rear side
(c) Base
147˚
147˚
123˚
R247
R350
R800
123˚
R98(b)
R141(c)
R145(a)
0
R6YXC800 (Z-axis mechanical stopper position)
Z-axis upper end
mechanical stopper position
Z-axis lower end
mechanical stopper position
Working envelope
X and Y-axis mechanical stopper positions (maximum working envelope)
Fig.3-75 R6YXC800

Table of Contents

Related product manuals