EasyManua.ls Logo

Panasonic Minas E Series - Dimensional Outline Drawing of Motor with Gear

Panasonic Minas E Series
216 pages
Print Icon
To Next Page IconTo Next Page
To Next Page IconTo Next Page
To Previous Page IconTo Previous Page
To Previous Page IconTo Previous Page
Loading...
200
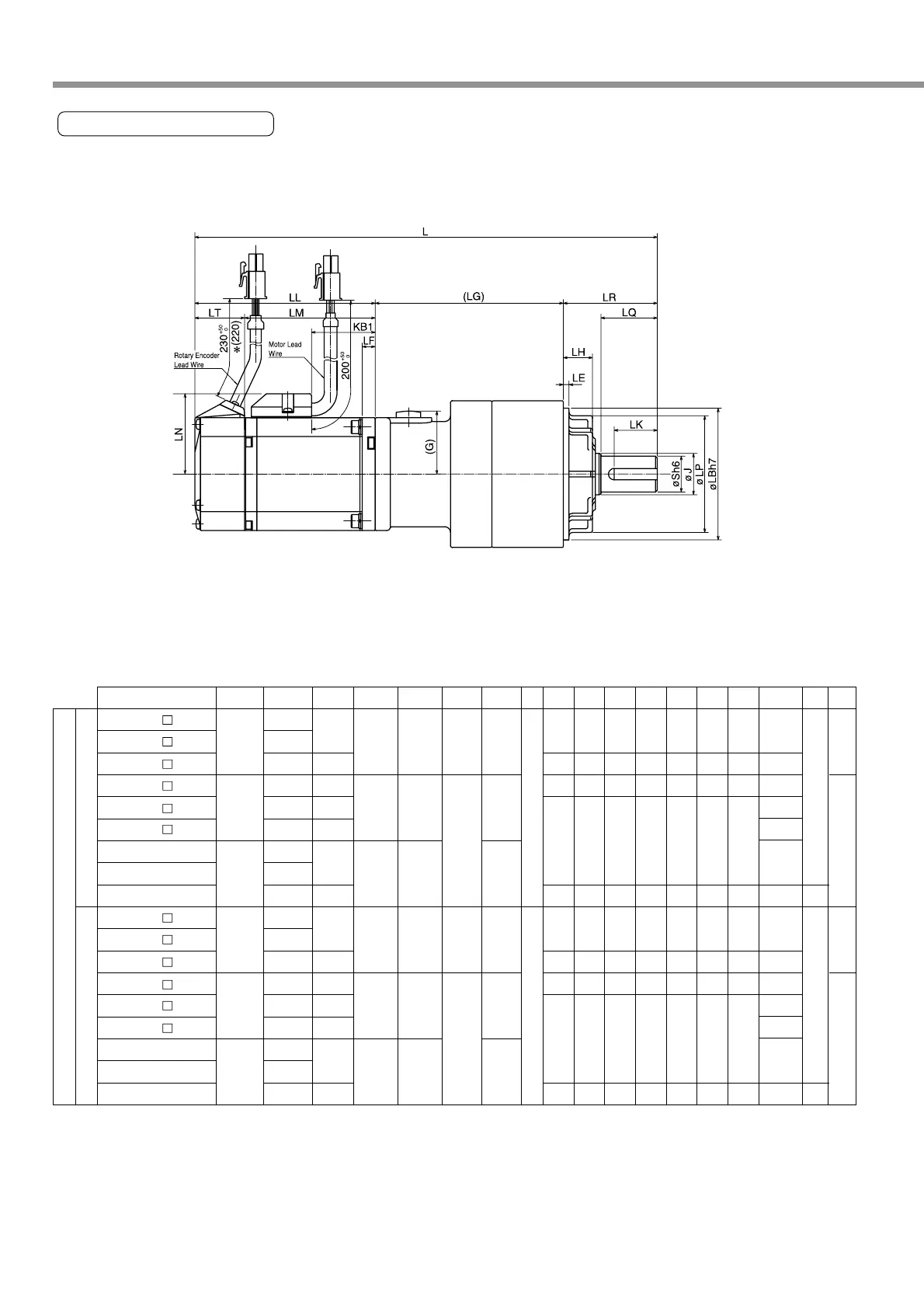
Dimensional Outline Drawing of Motor with Gear
Servo Motor with Gear
* 220 refers to 200W or higher.
MUMA01 P31N
MUMA01 P32N
MUMA01 P34N
MUMA02 P31N
MUMA02 P32N
MUMA02 P34N
MUMA042P31N
MUMA042P32N
MUMA042P34N
MUMA01 P41N
MUMA01 P42N
MUMA01 P44N
MUMA02 P41N
MUMA02 P42N
MUMA02 P44N
MUMA042P41N
MUMA042P42N
MUMA042P44N
MUMA
Without a brakeWith a brake
Model
Motor
Output
Reduction
Ratio
L LL LM LT KB1 LF LR LQ LB S LP LH J (LG) LE (G)
100W
200W
400W
100W
200W
400W
1/5
1/9
1/25
1/5
1/9
1/25
1/5
1/9
1/25
1/5
1/9
1/25
1/5
1/9
1/25
1/5
1/9
1/25
192
234,5
200.5
235.5
246
263
288.5
223.5
266
233.5
268.5
279
296
321.5
92.5
96
123.5
124
129
156.5
64
69.5
97
95.5
102.5
130
28.5
26.5
28.5
26.5
38.8
34
61.5
38.8
34
61.5
7
7
32
50
32
50
61
32
50
32
50
61
20
30
20
30
40
20
30
20
30
40
50
70
50
70
90
50
70
50
70
90
12
19
12
19
24
12
19
12
19
24
45
62
45
62
75
45
62
45
62
75
10
17
10
17
18
10
17
10
17
18
14
22
14
22
28
14
22
14
22
28
25
34
34
25
67.5
92
72.5
89.5
100
89.5
104
67.5
92
72.5
89.5
100
89.5
104
3
5
3
5
(unit: mm)
Buy: www.ValinOnline.com | Phone 844-385-3099 | Email: CustomerService@valin.com

Table of Contents

Related product manuals