EasyManua.ls Logo

Panasonic Minas E Series - Example of Connection to a Host Controller

Panasonic Minas E Series
216 pages
Print Icon
To Next Page IconTo Next Page
To Next Page IconTo Next Page
To Previous Page IconTo Previous Page
To Previous Page IconTo Previous Page
Loading...
73
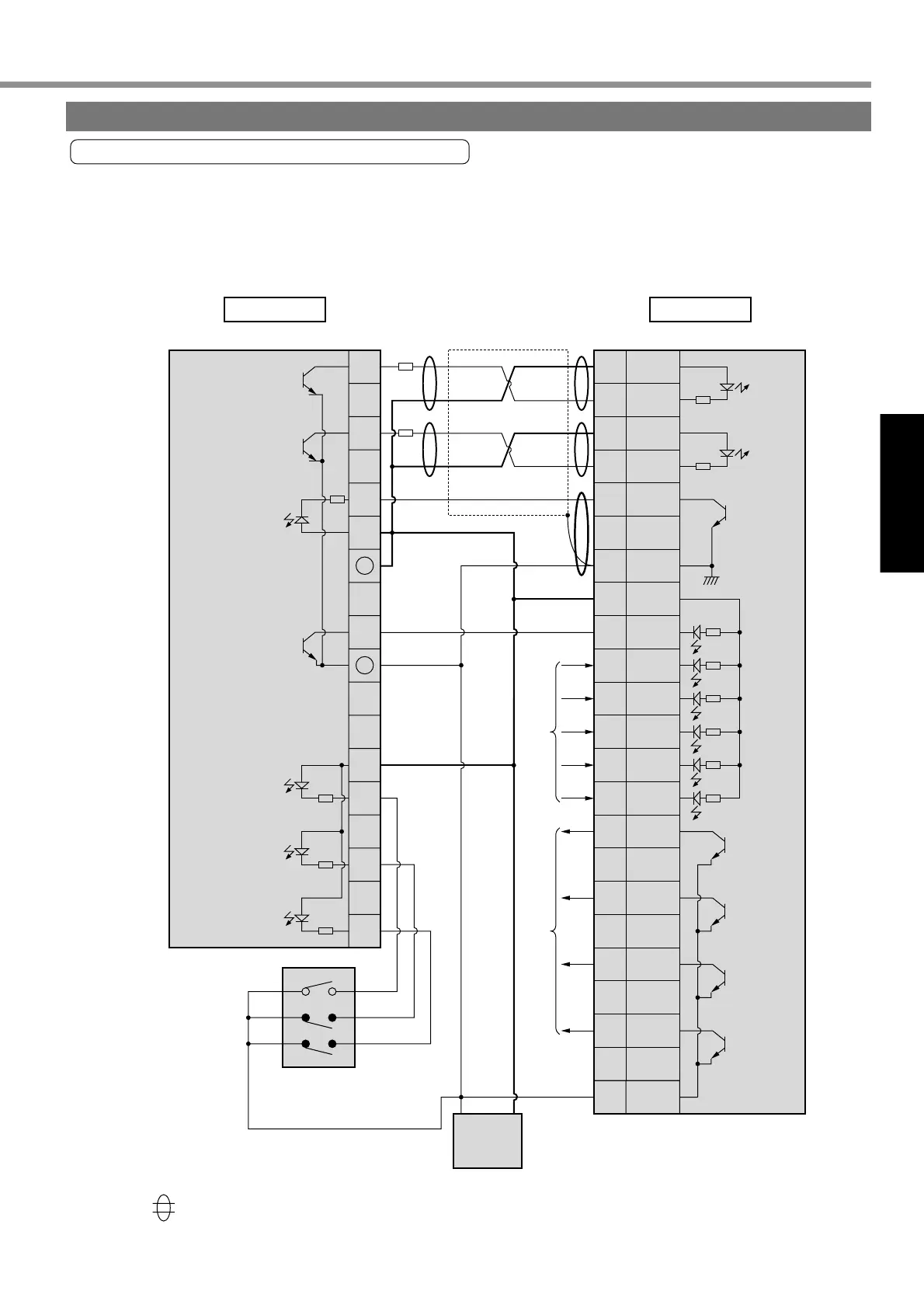
[Connections and Settings in Position Control Mode]
Connections and
Settings in Position
Control Mode
2k
2k
5.6k
3k
5.6k
5.6k
220
220
4.7k
4.7k
4.7k
4.7k
4.7k
4.7k
CW pulse command
output
CCW pulse command
output
CW pulse
command
input
Y0
Y1
X2
COM
+
Y2
COM
X3
X5
X6
PULS1
PULS2
SIGN1
SIGN2
CZ
GND
COM+
CL
SRV-ON
GAIN/TC
A-CLR
CCWL
CWL
ALM
COIN
BRKOFF
WARN
COM–
22
23
24
25
21
14
1
4
2
5
3
8
7
9
10
11
12
13
CCW pulse
command
input
Origin input
Deviation counter
reset output
Counter
clear input
Servo-ON
input
Servo alarm
output
Positioning
completion output
Brake release
output
Alarm clear
input
CW overtravel
inhibit input
CCW overtravel
inhibit input
PLC
FPG-C32T (Matsushita Electric Works, Ltd. FP)
Driver
E-series
Phase Z
output
Origin proximity
sensor
CW limit sensor
CCW limit sensor
From PLC
I/O output
To PLC
I/O input
GND +24V
DC24V
power supply
Origin proximity input
CCW limit over input
CW limit over input
Warning output
Gain switching
input/torque limit
switching input
Example of Connection to a Host Controller
Matsushita Electric Works, Ltd. FPG-C32T
This represents a twisted pair cable.
<Remarks>
Buy: www.ValinOnline.com | Phone 844-385-3099 | Email: CustomerService@valin.com

Table of Contents

Related product manuals