EasyManua.ls Logo

Ravelli Hydro - Page 28

Ravelli Hydro
Print Icon
To Next Page IconTo Next Page
To Next Page IconTo Next Page
To Previous Page IconTo Previous Page
To Previous Page IconTo Previous Page
Loading...
Manuale uso e manutenzione Touch Radio Hydro
Pag.27
Rev.0 18/05/2021
IT
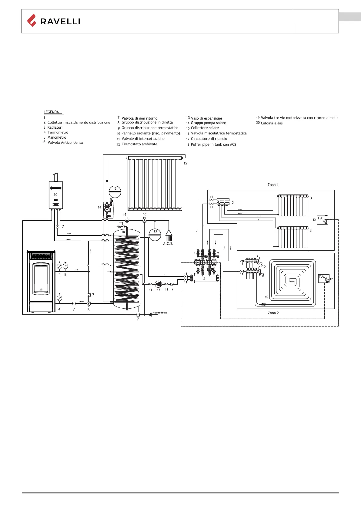
Schema 2 (sonda pu󰀨er)
Lo schema 2 può essere utilizzato in un impianto in cui è presente un serbatoio di accumulo (Puffer) che gestisce l’impianto di
riscaldamento e, se predisposto, anche la produzione di ACS. In questo impianto la termostufa è collegata direttamente al Puffer.
In questo tipo di circuito, la gestione della temperatura ambiente è affidata ad una centralina (non fornita) che gestisce il puffer ed
eventuali valvole di zona. La temperatura del puffer viene gestita dalla termostufa grazie ad una sonda. La termostufa funziona alla
potenza massima per raggiungere la temperatura del puffer impostata. Quando viene raggiunta, la stufa si porta in stato ECO STOP
e riparte in automatico se la temperatura del puffer scende sotto tale valore. Il vantaggio dell’utilizzo del Puffer è che regolarizza il
funzionamento della termostufa. Il puffer può essere collegato ad altre unità di produzione di calore, come ad esempio dei pannelli
solari e/o caldaia a gas.
Lo schema qui riportato è indicativo e potrebbe non riportare tutti i componenti necessari per il corretto funzionamento dell’impianto.
Affidarsi ad un termotecnico abilitato per la progettazione dell’impianto idraulico.
Stufa a Pellet

Table of Contents

Other manuals for Ravelli Hydro

Related product manuals