EasyManua.ls Logo

Ravelli Hydro - Page 79

Ravelli Hydro
Print Icon
To Next Page IconTo Next Page
To Next Page IconTo Next Page
To Previous Page IconTo Previous Page
To Previous Page IconTo Previous Page
Loading...
Manuel d’utilisation et d’entretien Touch Radio Hydro
Pag.78
Rev.0 18/05/2021
FR
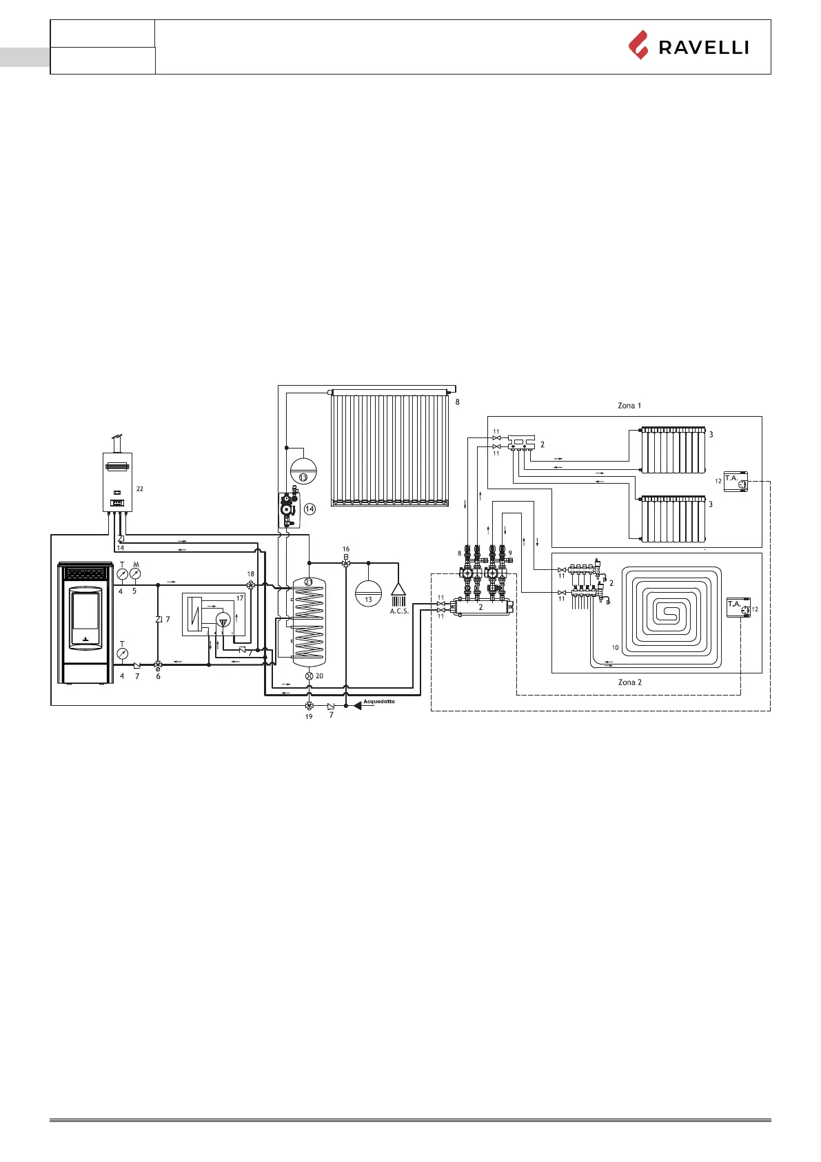
Schéma 1 (sonde chaudière)
Le schéma 1 permet de gérer une installation de chauffage où il y a également une chaudière pour la production d’eau chaud sani-
taire (ECS). La chaudière peut être reliée à d’autres unités de production de chaleur, telles que des panneaux solaires.
Avec ce schéma, le poêle fonctionne pour amener la chaudière à la température configurée ; lorsque la température de l’eau réglée
est atteinte, la vanne à trois voies change de position et le thermopoêle commence à échanger dans le système de chauffage. Dé-
sormais, la chaudière est gérée par le thermostat externe ou par l’ensemble H2O interne (comme pour le schéma 0). Le thermopoêle
chauffe à nouveau la chaudière lorsque la température de l’eau de celle-ci descend en dessous de la valeur de consigne ou lorsque
le fluxostat (si connecté) détecte l’utilisation d’eau chaude sanitaire.
Si le thermopoêle est en mode ECO STOP ou en mode STAND-BY EAU, aux conditions classiques de redémarrage du schéma 0,
s’ajoute la demande de la chaudière ou du fluxostat.
Ce schéma est fourni à titre indicatif et peut ne pas représenter tous les composants nécessaires pour le bon fonctionnement de
l’installation. S’adresser à un chauffagiste qualifié pour la conception de l’installation hydraulique.
Stufa a Pellet
LÉGENDE
1- Poêle à granulés
2- Collecteurs de chauffage distribution
3- Radiateurs
4- Thermomètre
5- Manomètre
6- Valve anti-condensation
7- Clapet anti-retour
8- Groupe de distribution en direct
9- Groupe de distribution thermostatique
10- Panneau rayonnant (chauf. par le sol)
11- Vannes d’arrêt
12- Thermostat d’ambiance
13- Vase d’expansion
14- Groupe pompe solaire
15- Collecteur solaire
16- Mitigeur thermostatique
17- Groupe de séparation puissance
18- Vanne à trois voies motorisée
19- Vanne à trois voies motorisée avec retour
à ressort
20- Fluxostat
21- Ballon cumulus ECS
22- Chaudière à gaz

Table of Contents

Other manuals for Ravelli Hydro

Related product manuals