EasyManua.ls Logo

Ravelli Hydro - Page 80

Ravelli Hydro
Print Icon
To Next Page IconTo Next Page
To Next Page IconTo Next Page
To Previous Page IconTo Previous Page
To Previous Page IconTo Previous Page
Loading...
Manuel d’utilisation et d’entretien Touch Radio Hydro
Pag.79
Rev.0 18/05/2021
FR
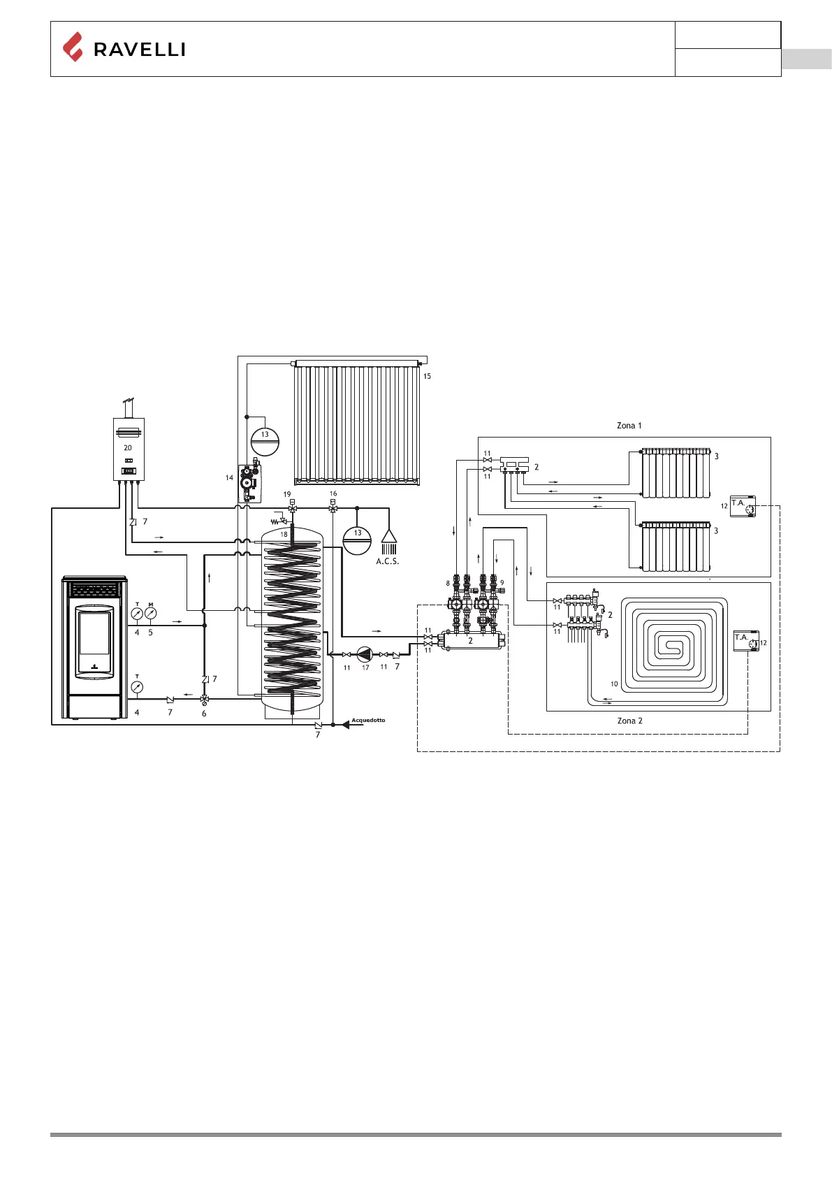
Schéma 2 (sonde pu󰀨er)
Le schéma 2 peut être utilisé dans une installation où il existe un réservoir tampon (Puffer) qui gère le système de chauffage et, si
cela est prévu, la production d’eau chaude sanitaire. Dans cette installation, le thermopoêle est connecté directement au Puffer.
Dans ce type de circuit, la gestion de la température ambiante est confiée à une unité de commande (non fournie) qui gère le puffer
et toutes les vannes de zone. La température du puffer est contrôlée par le thermopoêle grâce à une sonde.
Le thermopoêle fonctionne à la puissance maximale pour atteindre la température configurée du puffer. Lorsqu’elle est atteinte, le
poêle se met en mode ECO STOP et repart automatiquement si la température du puffer descend sous cette valeur. L’avantage
d’utiliser le Puffer est qu’il régule le fonctionnement du thermo-poêle. Le puffer peut être raccordé à d’autres unités de production de
chaleur, telles que des panneaux solaires et/ou chaudière à gaz.
Ce schéma est fourni à titre indicatif et peut ne pas représenter tous les composants nécessaires pour le bon fonctionnement de
l’installation. S’adresser à un chauffagiste qualifié pour la conception de l’installation hydraulique.
Stufa a Pellet
LÉGENDE
1- Poêle à granulés
2- Collecteurs de chauffage distribution
3- Radiateurs
4- Thermomètre
5- Manomètre
6- Valve anti-condensation
7- Clapet anti-retour
8- Groupe de distribution en direct
9- Groupe de distribution thermostatique
10- Panneau rayonnant (chauf. par le sol)
11- Vannes d’arrêt
12- Thermostat d’ambiance
13- Vase d’expansion
14- Groupe pompe solaire
15- Collecteur solaire
16- Mitigeur thermostatique
17- Circulateur d’appoint
18- Ballon tampon pipe in tank avec ECS
19- Vanne à trois voies motorisée avec
retour à ressort
20- Chaudière à gaz

Table of Contents

Other manuals for Ravelli Hydro

Related product manuals