EasyManua.ls Logo

REXROTH IndraDrive M - Dimensional Drawing for HMD01.1 N-W0036

REXROTH IndraDrive M
92 pages
Print Icon
To Next Page IconTo Next Page
To Next Page IconTo Next Page
To Previous Page IconTo Previous Page
To Previous Page IconTo Previous Page
Loading...
Rexroth IndraDrive M Mechanical Data 5-3
DOK-INDRV*-HMS+HMD****-PR04-EN-P
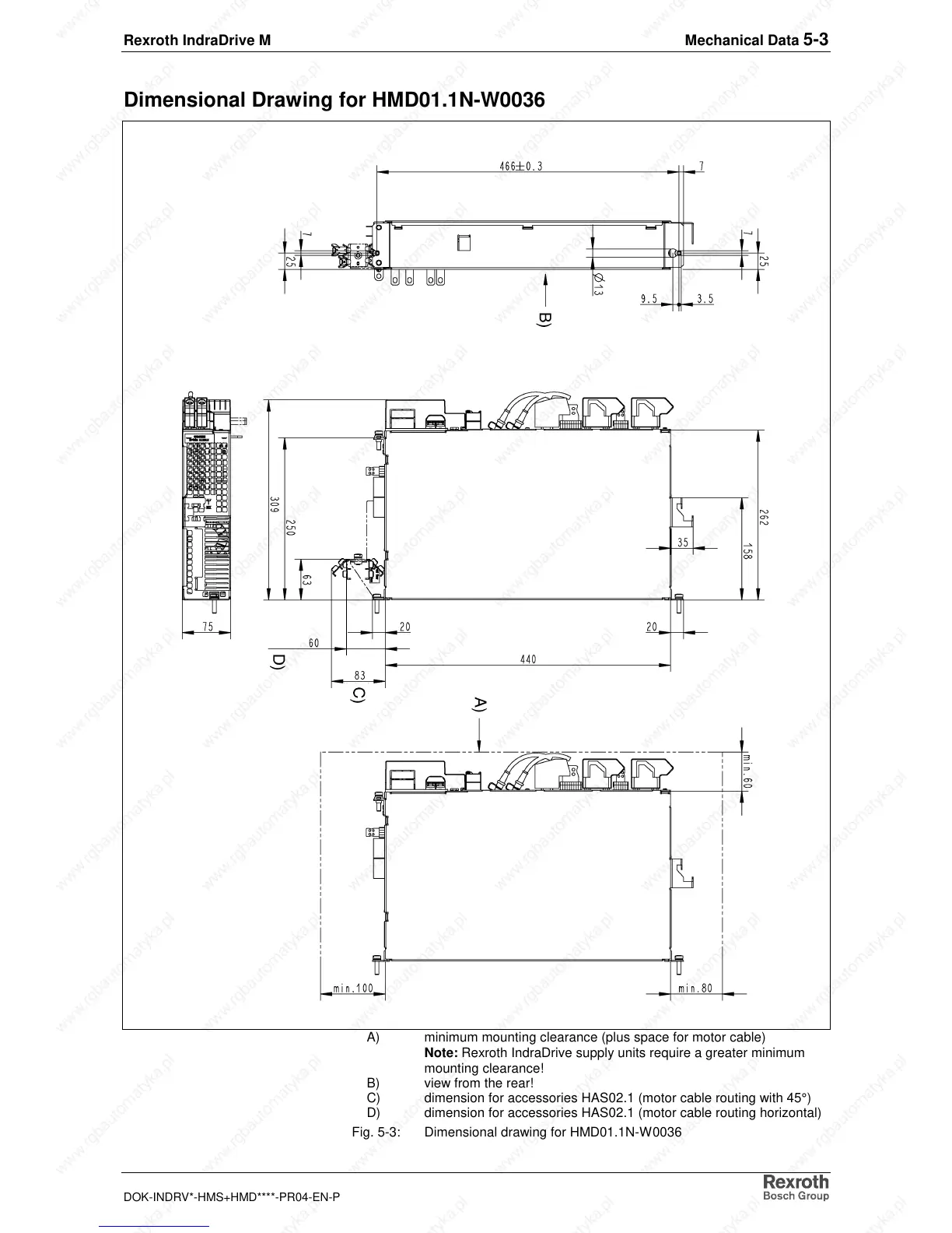
Dimensional Drawing for HMD01.1N-W0036
A) minimum mounting clearance (plus space for motor cable)
Note: Rexroth IndraDrive supply units require a greater minimum
mounting clearance!
B) view from the rear!
C) dimension for accessories HAS02.1 (motor cable routing with 45°)
D) dimension for accessories HAS02.1 (motor cable routing horizontal)
Fig. 5-3: Dimensional drawing for HMD01.1N-W0036

Table of Contents

Related product manuals