EasyManua.ls Logo

Rockwell Automation Allen-Bradley PowerFlex 700S - Flying Start

Rockwell Automation Allen-Bradley PowerFlex 700S
113 pages
Print Icon
To Next Page IconTo Next Page
To Next Page IconTo Next Page
To Previous Page IconTo Previous Page
To Previous Page IconTo Previous Page
Loading...
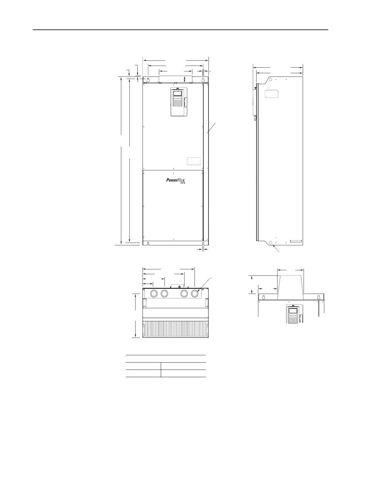
5-4 Frame 9 Installation
Dimensions
Figure 5.2 Frame 9 Dimensions
Dimensions are in millimeters and (inches).
339.5 (13.37)
363.3 (14.32)
1120.0
(44.09)
Nameplate
1150.0
(45.28)
9.0 (0.35)
Wire Way
240.0 (9.45)
14.0 (0.55)
5.0 (0.20)
480.0 (18.90)
400.0 (15.75)
9.0 (0.35)
372.5 (14.67)
292.5 (11.52)
142.5 (5.61)
62.5 (2.46)
285.0
(11.22)
Lifting Hole
21.0 (0.83)
45.0 (1.77)
100.12
(3.94)
191.64
(7.54)
Detail A
Brake Option Top Hat
Nameplate
59.0 (2.32)
245.53
(9.67)
Weight kg (lbs.)
Drive Drive & Packaging
143 (315) 177 (390)

Table of Contents

Other manuals for Rockwell Automation Allen-Bradley PowerFlex 700S

Related product manuals